『物件掲載希望』のオーナー様へ!
貸し倉庫・貸し倉庫マートでは、倉庫・工場・事業用地の物件情報を募集しております。
掲載希望のオーナー様はお気軽にお問合せ下さい。
現地取材後動画作成も行い、【YouTube、Instagram、Twitter】での情報発信も同時にさせていただいております。
もちろん掲載費用は無料です。
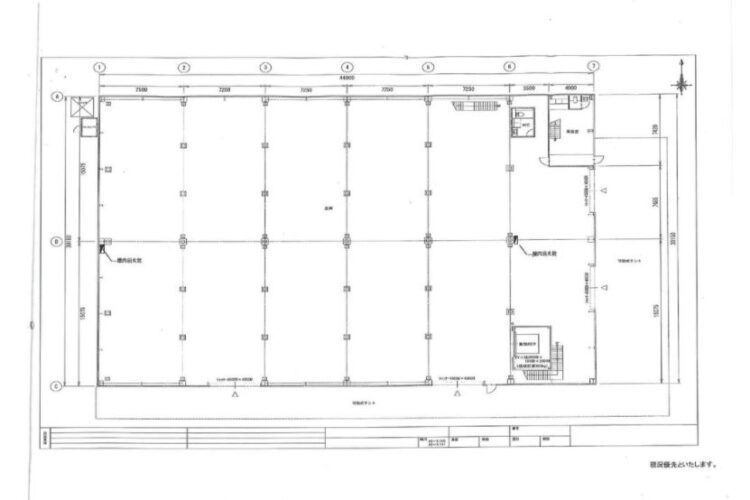
| 所在地 | 大阪府大阪市西淀川区福町3丁目4-36 |
|---|---|
| 交通・アクセス | 阪神なんば線『福』駅徒歩5分 阪神高速3号神戸線 姫島IC 約1.7㎞ 阪神高速3号神戸線 大和田IC 約1.2㎞ 国道43号線 約230m |
| 賃料 | 3,500,000円(税別)/坪単価:4,708円 |
| 敷金 | 6ヶ月 |
| 土地面積 | 2,427.07㎡(734.19坪) |
| 建物面積 | 1階:1,296.20㎡(392.10坪) 2階:1,100.47㎡(332.89坪) 1階事務所:30.40㎡(9.19坪) 2階事務所:30.40㎡(9.19坪) 合計:2,457.47㎡(743.37坪) |
| 建物構造 | 鉄骨造亜鉛メッキ鋼板葺2階建 |
| 建築年月日 | 1987年6月 |
| 用途地域 | 工業地域 |
| 使用開始時期 | 2026年2月1日(予定) |
| 備考 | *現況賃貸中で引渡しは2026年2月1日予定 *電動シャッター4ヶ所(H4.0m×W4.5m) *エレベーター1基 (H2.5m×W2.0m×D1.9m、耐荷重0.9t) *天井高:吹き抜け梁下9.50m 中2階上梁下4.13m、中2階下4.50m *駐車スペース広々(前面+側面) *空地を覆う大きな庇有り *徒歩5分にイズミヤショッピングセンター *敷引き:賃料の2ヶ月分(税別) |
—終了致しました!—
大阪府大阪市西淀川区福町の延床面積約743坪の貸倉庫です!
▪ 延床700坪越えの市内希少大型物件
▪ 阪神福駅徒歩5分
▪ 阪神高速神戸線IC近い
▪ 国道43号線すぐ
▪ 駐車スペース広々(前面+側面)
▪ 前面、側面空地を覆う大きな庇が有り雨天の荷捌き楽々
▪ エレベーター1基、電動シャッター4ヶ所
▪ 事務所有り
▪ 工業地域
▪ 徒歩5分にイズミヤショッピングセンター
市内希少大型貸倉庫出ました!
駅近、国道43号線や阪神高速ICも近い好立地!
駐車荷捌きスペース広々!
工業地域。
詳細はお気軽にお問い合わせ下さい!
その他、大阪市内北部の物件情報はこちら
➾【大阪市内北部】
貸し倉庫・貸し倉庫マートでは、倉庫・工場・事業用地の物件情報を募集しております。
掲載希望のオーナー様はお気軽にお問合せ下さい。
現地取材後動画作成も行い、【YouTube、Instagram、Twitter】での情報発信も同時にさせていただいております。
もちろん掲載費用は無料です。