『物件掲載希望』のオーナー様へ!
貸し倉庫・貸し倉庫マートでは、倉庫・工場・事業用地の物件情報を募集しております。
掲載希望のオーナー様はお気軽にお問合せ下さい。
現地取材後動画作成も行い、【YouTube、Instagram、Twitter】での情報発信も同時にさせていただいております。
もちろん掲載費用は無料です。
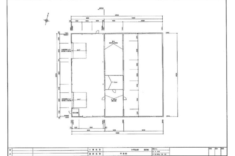
| 所在地 | 大阪府大阪市東淀川区西淡路6丁目4-111(14号倉庫) |
|---|---|
| 交通・アクセス | 阪急千里線『下新庄』駅徒歩8分 阪急千里線『淡路』駅徒歩12分 JRおおさか東線『南吹田』駅徒歩16分 府道14号線(大阪高槻京都線)約400m 国道423号線(新御堂筋)約1.8㎞ JR・地下鉄各線『新大阪』駅約1.9㎞ |
| 賃料 | 1,141,000円(税別)/坪単価:7,012円 |
| 保証金/解約引 | 3ヶ月/1ヶ月 |
| 建物面積 | 537.90㎡(162.71坪) |
| 建物構造 | 鉄骨造亜鉛メッキ鋼板葺平家建 |
| 用途地域 | 準工業地域 |
| 使用開始時期 | 2026年4月1日 |
| 備考 | *定期賃貸借契約期間5年(更新条件付き可) *大型車出入り可 *駐車場月額(税別) 大型車38,000円/台 中型車28,000円/台 普通車15,000円/台 *事務所有り *通路は共用 *スーパーライフ 約400m |
大阪府大阪市東淀川区西淡路の延床面積約162坪の貸倉庫です!
▪ 天井高い大型平屋倉庫
▪ 阪急下新庄駅徒歩圏
▪ 新大阪駅、新御堂筋近い
▪ 大型車出入り可
▪ 別途契約駐車場有り
▪ 事務所有り
▪ 通路は共通
▪ 準工業地域
使い易い天井高い大型平屋倉庫!
大型車出入り可!
駅徒歩圏、新大阪駅、新御堂筋も近い!
準工業地域。
詳細はお気軽にお問い合わせ下さい!
その他、大阪市内北部の物件情報はこちら
➾【大阪市内北部】
貸し倉庫・貸し倉庫マートでは、倉庫・工場・事業用地の物件情報を募集しております。
掲載希望のオーナー様はお気軽にお問合せ下さい。
現地取材後動画作成も行い、【YouTube、Instagram、Twitter】での情報発信も同時にさせていただいております。
もちろん掲載費用は無料です。