『物件掲載希望』のオーナー様へ!
貸し倉庫・貸し倉庫マートでは、倉庫・工場・事業用地の物件情報を募集しております。
掲載希望のオーナー様はお気軽にお問合せ下さい。
現地取材後動画作成も行い、【YouTube、Instagram、Twitter】での情報発信も同時にさせていただいております。
もちろん掲載費用は無料です。
| 所在地 | 大阪府箕面市小野原東4丁目22-3 |
|---|---|
| 交通・アクセス | 大阪モノレール『豊川』駅徒歩約10分 阪急千里線『北千里』駅約2.3㎞ 国道171号線約950m 国道423号線約3.5㎞ |
| 賃料 | 465,300円(税込)/坪単価:5,995円 |
| 敷金 | 1,850,000円 |
| 礼金 | 1,400,000円(税込) |
| 建物面積 | 内法 256.59㎡(77.61坪) |
| 建物構造 | 軽量鉄骨造2階建 |
| 用途地域 | 第一種中高層住居専用地域 |
| 前面道路幅員 | 7.0m |
| 使用開始時期 | 相談 |
| 設備 | 電気、トイレ、ミニキッチン、電動シャッター |
| 備考 | *3連棟の中棟 *現況空家 *リフォーム済 *1階倉庫天井高4.8m *駐車スペース有り(前面空地 3~4台 無料) *別途西端区画横に駐車場有(94㎡)別途契約可能。 賃料45,000円(税別) *残置物:1階倉庫内電力電源盤等 電動シャッター(電動装置部分) 2階エアコン、1階倉庫内換気扇 *図面と現況が異なる場合は現況優先 *短期解約違約金有り 敷金より控除 半年未満 100%控除 半年~1年未満の解約 90%控除 1年~2年未満の解約 80%控除 2年~3年未満の解約 60%控除 3年~4年未満の解約 50%控除 |
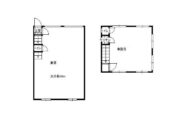
大阪府箕面市小野原東の延床面積約77坪の貸倉庫/事務所です!
■ 大阪モノレール『豊川』駅徒歩約10分
■ 国道171号線約950m
■ 国道423号線・新御堂筋も近い
■ 3連棟の真ん中棟
■ 1階倉庫、2階事務所
■ リフォーム済
■ 前面駐車場3~4台分
■ 別途94㎡の駐車場有(別途契約)
■ 天井高4.8m
■ 前面道路広く幅約7m
大阪府北部のアクセス良い駐車場付き倉庫/事務所!
営業所にピッタリです。
詳細はお気軽にお問い合わせ下さい!
その他、大阪府北部の物件情報はこちら
➾【大阪府北部】
貸し倉庫・貸し倉庫マートでは、倉庫・工場・事業用地の物件情報を募集しております。
掲載希望のオーナー様はお気軽にお問合せ下さい。
現地取材後動画作成も行い、【YouTube、Instagram、Twitter】での情報発信も同時にさせていただいております。
もちろん掲載費用は無料です。