『物件掲載希望』のオーナー様へ!
貸し倉庫・貸し倉庫マートでは、倉庫・工場・事業用地の物件情報を募集しております。
掲載希望のオーナー様はお気軽にお問合せ下さい。
現地取材後動画作成も行い、【YouTube、Instagram、Twitter】での情報発信も同時にさせていただいております。
もちろん掲載費用は無料です。
| 所在地 | 大阪府八尾市沼1丁目101-17 |
|---|---|
| 交通・アクセス | 大阪メトロ谷町線『八尾南』駅徒歩24分 国道170号線(大阪外環状線)約850m 西名阪自動車道 藤井寺IC 約2.4㎞ |
| 売買価格 | 38,000,000円 |
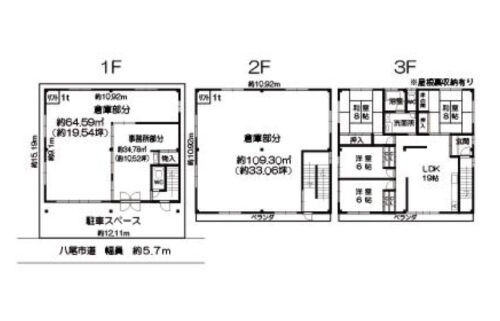
| 土地面積 | 184.05㎡(約55.68坪)*公簿 |
| 建物面積 | 1F:99.37㎡ 2F:109.30㎡ 3F:109.30㎡ 合計:317.97㎡(約96.19坪) |
| 建物構造 | 鉄骨造3階建 |
| 建築年月日 | 昭和63年11月 |
| 用途地域 | 第一種住居地域 |
| 前面道路幅員 | 約5.7m(約12.11m接道) |
| 使用開始時期 | 令和7年12月上旬(期日指定) |
| 設備 | 電気、上水道、下水道 |
| 備考 | *現況使用中で引渡しは令和7年12月上旬 *建ぺい率60%、容積率200% *現状渡し *リフト付き *駐車スペース有り *居宅付き *図面は概略図につき現況優先 *準防火地域 *公簿取引 *売主の契約不適合責任免責 *徒歩5分にイズミヤショッピングモール |
—終了致しました!—
大阪府八尾市沼の延床面積約96坪の売倉庫/事務所です!
▪ 大阪外環状線近く
▪ 西名阪自動車道 藤井寺IC 約2.4㎞
▪ リフト付き
▪ 駐車スペース有り
▪ 居宅付き
▪ 営業所や倉庫事務所に最適
外環状線や西名阪にアクセス良好!
リフト、駐車場有り!
営業所や倉庫事務所にいかがでしょうか
詳細はお気軽にお問い合わせ下さい!
その他、八尾市の物件情報はこちら
➾【八尾市】
貸し倉庫・貸し倉庫マートでは、倉庫・工場・事業用地の物件情報を募集しております。
掲載希望のオーナー様はお気軽にお問合せ下さい。
現地取材後動画作成も行い、【YouTube、Instagram、Twitter】での情報発信も同時にさせていただいております。
もちろん掲載費用は無料です。