『物件掲載希望』のオーナー様へ!
貸し倉庫・貸し倉庫マートでは、倉庫・工場・事業用地の物件情報を募集しております。
掲載希望のオーナー様はお気軽にお問合せ下さい。
現地取材後動画作成も行い、【YouTube、Instagram、Twitter】での情報発信も同時にさせていただいております。
もちろん掲載費用は無料です。
| 所在地 | 大阪府東大阪市新庄西10-35 |
|---|---|
| 交通・アクセス | JR学研都市線『鴻池新田』駅 約1.5㎞ 近鉄けいはんな線『荒本』駅 約1.5㎞ 大阪メトロ中央線 『長田』駅 約1.6㎞ 府道2号線(大阪中央環状線)約350m 近畿自動車道 東大阪北IC 約1.1㎞ 阪神高速13号東大阪線 長田IC 約1.8㎞ |
| 賃料 | 1,485,000円(税込)/坪単価:7,174円 |
| 保証金/解約引 | 6ヶ月/2ヶ月 |
| 土地面積 | 728.18㎡(220.27坪)*公簿 |
| 建物面積 | 684.30㎡(207.00坪)*公簿 |
| 建物構造 | 鉄骨造2階建 |
| 建築年月日 | 平成4年1月 |
| 用途地域 | 商業地域 |
| 前面道路幅員 | 東側:8m |
| 使用開始時期 | 相談 |
| 設備 | 上水道、下水道、トイレ、給湯室 |
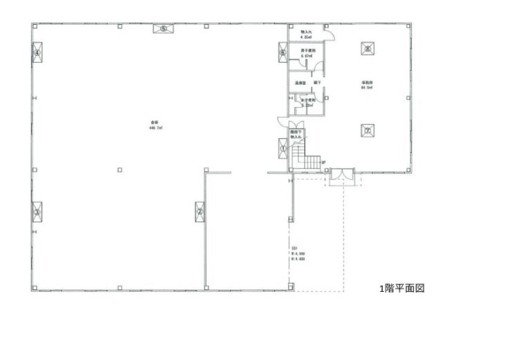
| 備考 | *現況空家 *一部改修予定 その他は現状有姿 *倉庫部分平屋で約446.7㎡ *駐車スペース有り(前面空地) *事務所棟エアコン有り(残置物) *契約期間2年 *借家人賠償責任保険加入要 *自主管理(水道高熱費、警備、清掃等) *角地 |
賃料値下げしました!
大阪府東大阪市新庄西の延床面積約207坪の貸倉庫/事務所です!
▪ 近畿道、阪神高速、中央環状線等幹線道路近い
▪ 平屋倉庫+2階建事務所
▪ 倉庫部分天井高く約135坪有り
▪ 駐車場有り
▪ 角地で前面道路広々
▪ 一部改修予定
▪ 事務所棟エアコン有り
使い易い天井高い平屋倉庫+2階建事務所!
駐車場有り!
詳細はお気軽にお問い合わせ下さい!
その他、東大阪市の物件情報はこちら
➾【東大阪市】
貸し倉庫・貸し倉庫マートでは、倉庫・工場・事業用地の物件情報を募集しております。
掲載希望のオーナー様はお気軽にお問合せ下さい。
現地取材後動画作成も行い、【YouTube、Instagram、Twitter】での情報発信も同時にさせていただいております。
もちろん掲載費用は無料です。