『物件掲載希望』のオーナー様へ!
貸し倉庫・貸し倉庫マートでは、倉庫・工場・事業用地の物件情報を募集しております。
掲載希望のオーナー様はお気軽にお問合せ下さい。
現地取材後動画作成も行い、【YouTube、Instagram、Twitter】での情報発信も同時にさせていただいております。
もちろん掲載費用は無料です。
| 所在地 | 大阪府豊中市庄内宝町1丁目7-1 |
|---|---|
| 交通・アクセス | 阪急宝塚線『庄内』駅 バス12分 寸賀尻橋停 徒歩約4分 阪急神戸線『園田』駅 バス12分 寸賀尻橋停 徒歩約4分 名神高速 豊中IC 約400m 阪神高速11号池田線 豊中南IC 約1.6㎞ 府道10号線(大池線)至近 |
| 賃料 | 1,000,000円(税別)/坪単価:6,283円 |
| 保証金/解約引 | 6,600,000円/2,200,000円(税込) |
| 土地面積 | 327.61㎡(99.10坪) |
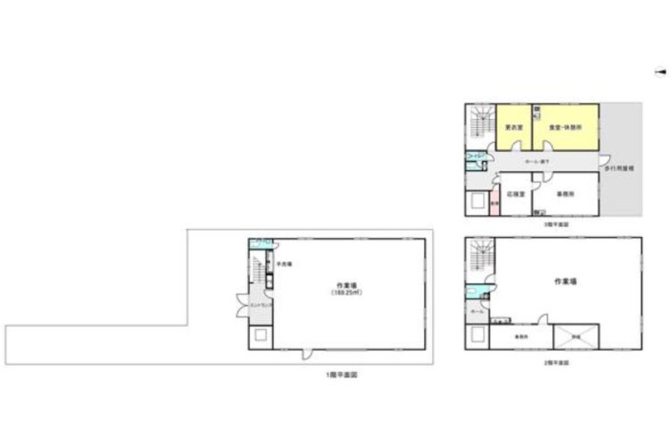
| 建物面積 | 1階:194.15㎡(58.73坪)倉庫 2階:180.65㎡(54.65坪)作業場 3階:151.30㎡(45.77坪)事務所 合計:526.10㎡(159.15坪) |
| 建物構造 | 鉄骨造亜鉛メッキ鋼板葺3階建 |
| 建築年月日 | 2004年3月30日 |
| 用途地域 | 準工業地域 |
| 前面道路幅員 | 西側:5m(40.7m接面)北側:4.9m(接面3m) |
| 使用開始時期 | 相談 |
| 設備 | 電気、水道、トイレ、洗面所、ミニキッチン(IHコンロ) |
| 備考 | *現況空家 *契約期間2年 *1階天井高:5.9m 2階最高天井高:5m 3階最高天井高:3.6m *1階シャッター:4000×4000 *性能保証無しの設備 エアコン、電動シャッター、クレーン、キュービクル 修理保守点検は借主様負担 *駐車スペース有り(北側) *現状引き渡し *内装については要望相談可能 *警備:引継ぎ可能(借主様負担) *エレベーター未設置(スペース有り) 設置する場合は借主様負担 *確認通知書有り、監査済み証無し *確認通知書と登記簿面積に差違有り *火災保険加入要(別途費用) *日本賃貸保証株式会社加入要 初回100%、更新50%(2年更新) *図面と現況が相違する場合は現況優先 |
—終了致しました!—
大阪府豊中市庄内宝町の延床面積約159坪の貸倉庫/事務所です!
▪ 名神高速 豊中IC 約400m
▪ 阪神高速池田線 豊中南IC 約1.6㎞
▪ 府道10号線(大池線)至近
▪ 1階2階天井高い
▪ エアコン、クレーン、キュービクル有り(性能保証無し)
▪ 駐車スペース有り
▪ 角地
▪ 準工業地域
名神豊中IC、阪神高速豊中南IC近い!
クレーン、キュービクル有り!
準工業地域。
詳細はお気軽にお問い合わせ下さい!
その他、大阪府北部の物件情報はこちら
➾【大阪府北部】
貸し倉庫・貸し倉庫マートでは、倉庫・工場・事業用地の物件情報を募集しております。
掲載希望のオーナー様はお気軽にお問合せ下さい。
現地取材後動画作成も行い、【YouTube、Instagram、Twitter】での情報発信も同時にさせていただいております。
もちろん掲載費用は無料です。