『物件掲載希望』のオーナー様へ!
貸し倉庫・貸し倉庫マートでは、倉庫・工場・事業用地の物件情報を募集しております。
掲載希望のオーナー様はお気軽にお問合せ下さい。
現地取材後動画作成も行い、【YouTube、Instagram、Twitter】での情報発信も同時にさせていただいております。
もちろん掲載費用は無料です。
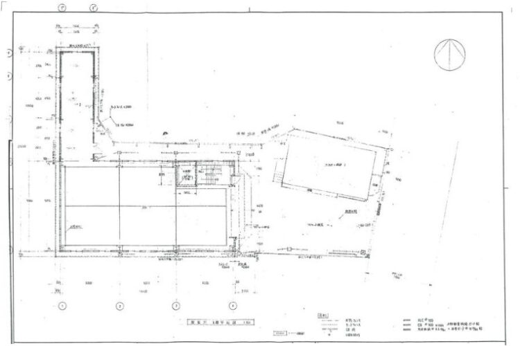
| 所在地 | 大阪府大阪市浪速区久保吉1丁目4-3 |
|---|---|
| 交通・アクセス | 南海汐見橋線『芦原橋』駅徒歩約4分 JR環状線『芦原橋』駅徒歩約7分 阪神高速15号堺線 芦原IC 約190m |
| 賃料 | 1,000,000円(税別)/坪単価:6,974円 |
| 保証金/解約引 | 6,000,000円/2ヶ月 |
| 土地面積 | 486.61㎡(147.19坪) |
| 建物面積 | 倉庫1階:213.23㎡ 2階:170.80㎡ 事務所1階:45.00㎡ 2階:45.00㎡ 合計:474.03㎡(143.39坪) |
| 建物構造 | 鉄骨造2階建 |
| 建築年月日 | 倉庫:1986年11月 事務所:1975年5月 |
| 用途地域 | 準工業地域 |
| 前面道路幅員 | 約7m |
| 使用開始時期 | 2025年12月1日(予定) |
| 備考 | *EV有り *駐車スペース有り *2階建倉庫:延べ約116坪 2階建事務所:延べ約27坪 *表記情報と現況が異なる場合現況優先 |
大阪府大阪市浪速区久保吉の延床面積約143坪の貸倉庫/事務所です!
▪ 南海汐見橋線 芦原橋駅徒歩約4分
▪ JR環状線 芦原橋駅徒歩約7分
▪ 阪神高速堺線 芦原IC至近
▪ 2階建倉庫約116坪+2階建事務所約27坪
▪ EV有り
▪ 駐車スペース有り
▪ 準工業地域
2路線駅近く、阪神高速芦原IC至近!
EV、駐車スペース有り!
準工業地域。
色々揃った使い易い物件です!
詳細はお気軽にお問い合わせ下さい!
その他、大阪市内中心部の物件情報はこちら
➾【大阪市内中心部】
貸し倉庫・貸し倉庫マートでは、倉庫・工場・事業用地の物件情報を募集しております。
掲載希望のオーナー様はお気軽にお問合せ下さい。
現地取材後動画作成も行い、【YouTube、Instagram、Twitter】での情報発信も同時にさせていただいております。
もちろん掲載費用は無料です。