『物件掲載希望』のオーナー様へ!
貸し倉庫・貸し倉庫マートでは、倉庫・工場・事業用地の物件情報を募集しております。
掲載希望のオーナー様はお気軽にお問合せ下さい。
現地取材後動画作成も行い、【YouTube、Instagram、Twitter】での情報発信も同時にさせていただいております。
もちろん掲載費用は無料です。
| 所在地 | 大阪府大阪市浪速区桜川2丁目10-11 |
|---|---|
| 交通・アクセス | 大阪メトロ千日前線『桜川』駅徒歩4分 阪神なんば線『桜川』駅徒歩7分 JR関西本線『難波』駅徒歩8分 なにわ筋至近 阪神高速1号環状線 湊町ICすぐ |
| 賃料 | 1,100,000円(税別)/坪単価:7,504円 |
| 保証金 | 2,200,000円 |
| 礼金 | 1,210,000円(税込) |
| 土地面積 | 271.02㎡(81.98坪)*実測 |
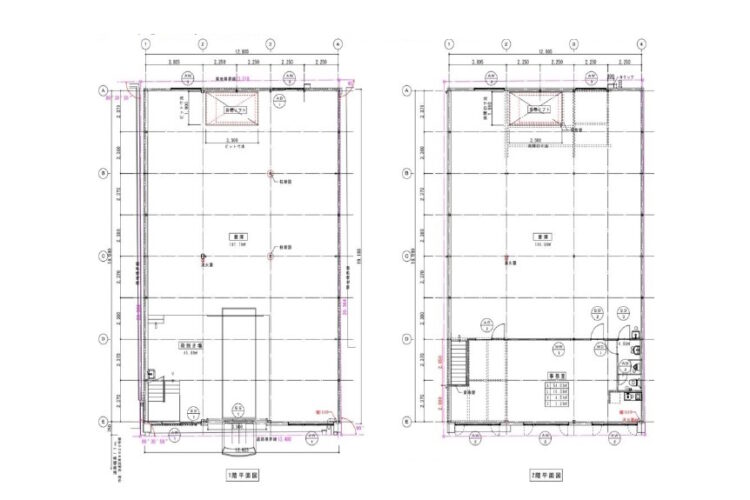
| 建物面積 | 1階:倉庫197.76㎡、荷捌き場45.89㎡ 計243.65㎡ 2階:倉庫186.90㎡、事務所54.03㎡ 計240.93㎡ 合計:484.58㎡(146.58坪) |
| 建物構造 | 鉄骨造2階建 |
| 建築年月日 | 昭和43年12月 |
| 用途地域 | 準工業地域 |
| 前面道路幅員 | 11.0m |
| 使用開始時期 | 相談 |
| 設備 | 電気、上水道、下水道 |
| 備考 | *現況賃貸中で引渡し時期は相談 *大規模改修工事 令和5年7月 屋根、外壁、内装等大改修 *電動シャッター高さ3,950㎜ *業種要相談。使用不可な業種が有ります。 *火災保険加入要 |
大阪府大阪市浪速区桜川の延床面積約146坪の貸倉庫/事務所です!
■ 大阪メトロ千日前線『桜川』駅徒歩4分
■ 阪神なんば線『桜川』駅、JR関西本線『難波』駅徒歩圏
■ なにわ筋至近
■ 阪神高速1号環状線 湊町ICすぐ
■ 令和5年大規模改修工事済
■ 電動シャッター(高さ3.95m)
■ 前面道路広々11m
■ 準工業地域
3路線駅より徒歩圏内、高速ICも近い好立地!
大阪市内中心部希少1棟貸し!
大規模改修工事済!
準工業地域。
詳細はお気軽にお問い合わせ下さい!
その他、大阪市内中心部の物件情報はこちら
⇒【大阪市中心部】
貸し倉庫・貸し倉庫マートでは、倉庫・工場・事業用地の物件情報を募集しております。
掲載希望のオーナー様はお気軽にお問合せ下さい。
現地取材後動画作成も行い、【YouTube、Instagram、Twitter】での情報発信も同時にさせていただいております。
もちろん掲載費用は無料です。