『物件掲載希望』のオーナー様へ!
貸し倉庫・貸し倉庫マートでは、倉庫・工場・事業用地の物件情報を募集しております。
掲載希望のオーナー様はお気軽にお問合せ下さい。
現地取材後動画作成も行い、【YouTube、Instagram、Twitter】での情報発信も同時にさせていただいております。
もちろん掲載費用は無料です。
| 所在地 | 大阪府柏原市片山町13-40 |
|---|---|
| 交通・アクセス | 近鉄大阪線『河内国分』駅徒歩13分 府道12号線(堺大和高田線)約200m 国道25号線 約1㎞ 西名阪自動車道 藤井寺IC 約2.5㎞ |
| 賃料 | 495,000円(税込) |
| 礼金 | 2ヶ月 |
| 土地面積 | 414.16㎡(125.28坪)*公簿 |
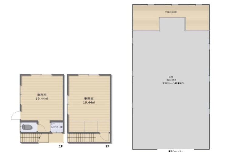
| 建物面積 | 224.46㎡(67.90坪)*公簿 |
| 建物構造 | 鉄骨造平家建 |
| 建築年月日 | 2007年3月 |
| 用途地域 | 準工業地域 |
| 前面道路幅員 | 約4.2m |
| 使用開始時期 | 相談 |
| 備考 | *現況空家 *付属建物 事務所棟有り 1階 19.44㎡ 2階 19.44㎡ 合計38.88㎡(11.76坪) *天井クレーン2基有り *倉庫内中2階有り *駐車スペース有り(前面空地) *室内設備、全て免責 動産は貸主にて撤去予定 *契約期間2年 *家賃保証加入要(日本セーフティー 賃料100%) *徒歩5分に業務スーパー |
—終了致しました!—
大阪府柏原市片山町の延床面積約67坪の貸倉庫/工場/事務所です!
▪ 使い易い天井高い平屋
▪ 2階建事務所付き
▪ 天井クレーン2基有り
▪ 倉庫内中2階有り
▪ 駐車スペース有り
▪ 西名阪自動車道 藤井寺IC 約2.5㎞
▪ 準工業地域
2階建事務所付き天井高い平屋倉庫!
天井クレーン2基、駐車場有り!
準工業地域。
色々揃った手頃な倉庫です!
詳細はお気軽にお問い合わせ下さい!
その他、大阪府南部の物件情報はこちら
➾【大阪府南部】
貸し倉庫・貸し倉庫マートでは、倉庫・工場・事業用地の物件情報を募集しております。
掲載希望のオーナー様はお気軽にお問合せ下さい。
現地取材後動画作成も行い、【YouTube、Instagram、Twitter】での情報発信も同時にさせていただいております。
もちろん掲載費用は無料です。