『物件掲載希望』のオーナー様へ!
貸し倉庫・貸し倉庫マートでは、倉庫・工場・事業用地の物件情報を募集しております。
掲載希望のオーナー様はお気軽にお問合せ下さい。
現地取材後動画作成も行い、【YouTube、Instagram、Twitter】での情報発信も同時にさせていただいております。
もちろん掲載費用は無料です。
| 所在地 | 大阪府東大阪市荒本新町6-48 |
|---|---|
| 交通・アクセス | 近鉄けいはんな線『荒本』駅徒歩4分 国道308号線(中央大通)約180m 阪神高速13号東大阪線 中野IC 約900m 阪神高速13号東大阪線 荒本IC 約1.6㎞ |
| 賃料 | 500,000円(税別)/坪単価:5,006円 |
| 保証金 | 1,500,000円 |
| 礼金 | 550,000円(税込) |
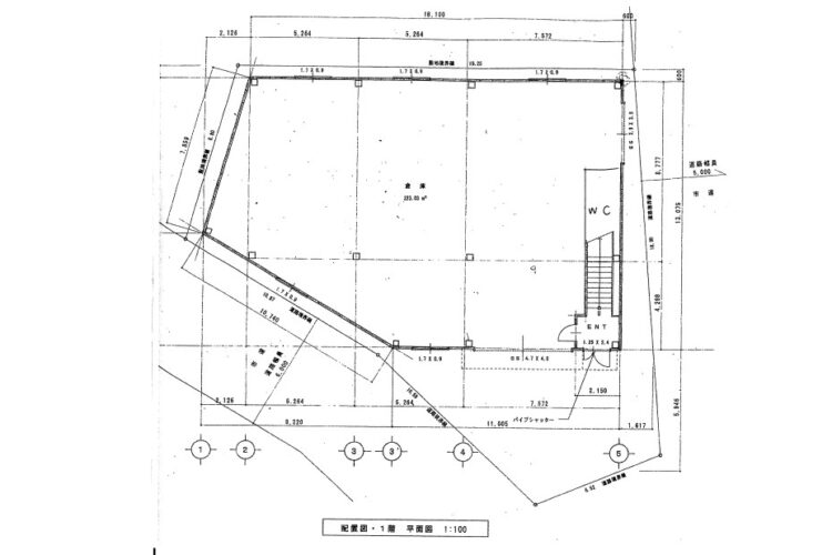
| 土地面積 | 338.88㎡(102.51坪) |
| 建物面積 | 1階:230.6㎡ 2階:99.6㎡ 合計:330.2㎡(99.88坪) |
| 建物構造 | 鉄骨造2階建 |
| 建築年月日 | 平成18年11月 |
| 用途地域 | 商業地域 |
| 前面道路幅員 | 東側:6.0m 南側:6.0m |
| 使用開始時期 | 即時 |
| 設備 | 電気、上水道、下水道、給湯 |
| 備考 | *現況空家 *1階:高さ5m 2階:高さ2.6m *駐車スペース有り(前面空地) *角地 *検査済証無し *徒歩4分にコーナン |
—終了致しました!—
大阪府東大阪市荒本新町の延床面積約100坪の貸倉庫/事務所です!
▪ 近鉄けいはんな線 荒本駅徒歩4分
▪ 中央大通すぐ
▪ 阪神高速IC近い
▪ 1階天井高い(5m)
▪ 駐車スペース有り
▪ 角地
駅近、阪神高速や中央大通に近い好立地!
駐車スペース有り!
手頃で立地のよい好物件です!
詳細はお気軽にお問い合わせ下さい!
その他、東大阪市の物件情報はこちら
➾【東大阪市】
貸し倉庫・貸し倉庫マートでは、倉庫・工場・事業用地の物件情報を募集しております。
掲載希望のオーナー様はお気軽にお問合せ下さい。
現地取材後動画作成も行い、【YouTube、Instagram、Twitter】での情報発信も同時にさせていただいております。
もちろん掲載費用は無料です。