『物件掲載希望』のオーナー様へ!
貸し倉庫・貸し倉庫マートでは、倉庫・工場・事業用地の物件情報を募集しております。
掲載希望のオーナー様はお気軽にお問合せ下さい。
現地取材後動画作成も行い、【YouTube、Instagram、Twitter】での情報発信も同時にさせていただいております。
もちろん掲載費用は無料です。
| 所在地 | 兵庫県西宮市中殿町5-2 |
|---|---|
| 交通・アクセス | JR東海道本線「西宮」駅 徒歩6分 阪急神戸線「西宮北口」駅 徒歩11分 山手幹線 約130m 国道171号線 約550m 国道2号線 約850m 阪神高速3号神戸線 西宮出入口 約2.2㎞ |
| 賃料 | 770,000円(税込)/坪単価:7,325円 |
| 礼金 | 2.2ヶ月(税込) |
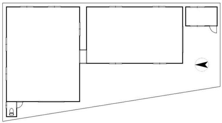
| 土地面積 | 347.48㎡(約105.11坪) |
| 建物面積 | 約196㎡(約59.29坪)*実測値 |
| 用途地域 | 第一種住居地域 |
| 使用開始時期 | 相談(現況空) |
| 備考 | *駐車スペース有 *倉庫未登記 *角地 *洋式トイレ・電動シャッター有 *賃貸保証:加入要 *火災保険:加入要 *24時間利用可能 *契約期間 2年 *現況優先 *ローソン 徒歩約4分 |
兵庫県西宮市中殿町の敷地面積約105坪の貸倉庫/事業用地です!
▪ 駐車スペース有
▪ 角地
▪ 電動シャッター有
▪ JR東海道本線「西宮」駅 徒歩6分
▪ 阪急神戸線「西宮北口」駅 徒歩11分
▪ 山手幹線 約130m
▪ 国道171号線 約550m 国道2号線 約850m
▪ ローソン 徒歩約4分
駐車スペース有!
角地!
電動シャッター有!
駅近・2沿線利用可能!
幹線道路、国道近い!
コンビニ近い!
詳細はお気軽にお問い合わせ下さい!
その他、兵庫県東部の物件情報はこちら
➾【兵庫県東部】
貸し倉庫・貸し倉庫マートでは、倉庫・工場・事業用地の物件情報を募集しております。
掲載希望のオーナー様はお気軽にお問合せ下さい。
現地取材後動画作成も行い、【YouTube、Instagram、Twitter】での情報発信も同時にさせていただいております。
もちろん掲載費用は無料です。