『物件掲載希望』のオーナー様へ!
貸し倉庫・貸し倉庫マートでは、倉庫・工場・事業用地の物件情報を募集しております。
掲載希望のオーナー様はお気軽にお問合せ下さい。
現地取材後動画作成も行い、【YouTube、Instagram、Twitter】での情報発信も同時にさせていただいております。
もちろん掲載費用は無料です。
| 所在地 | 大阪府大阪市生野区田島2丁目8-3 |
|---|---|
| 交通・アクセス | 大阪メトロ千日前線『北巽』駅徒歩18分 JR大阪環状線『桃谷』駅徒歩27分 今里筋 約108m 府道173号線(勝山通)約300m |
| 売買価格 | 70,000,000円(税込) |
| 土地面積 | 259.28㎡(約78.43坪)*公簿 |
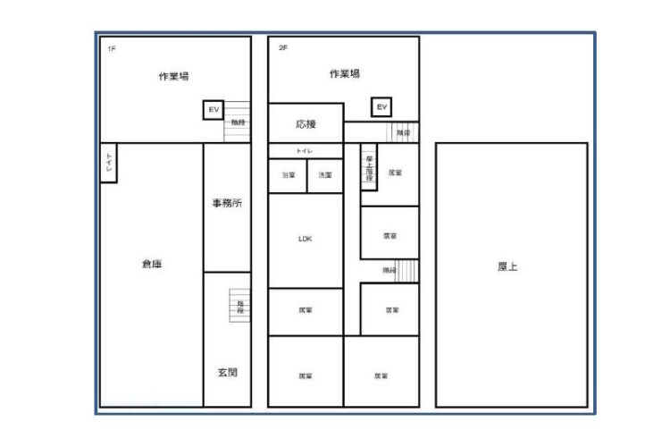
| 建物面積 | 1階:215.39㎡ 2階:221.33㎡ 合計:436.72㎡(約132.10坪) |
| 建物構造 | 鉄骨造陸屋根スレート葺2階建 |
| 建築年月日 | 昭和56年3月 |
| 用途地域 | 第一種住居地域 |
| 前面道路幅員 | 約4m(間口9.83m) |
| 使用開始時期 | 相談 |
| 備考 | *現況所有者使用中で引渡しは相談 *建ぺい率80%、容積率200% *現状有姿 *公簿取引 *契約不適合責任免責 *1階作業場内に井戸有り *隣地より下水道管の越境の可能性有り *準防火地域 *図面は概略図に付き現況優先 *徒歩4分にローソン |
—終了致しました!—
大阪府大阪市生野区田島の延床面積約132坪の売倉庫/居宅です!
▪ 1階倉庫/作業場、2階作業場/居宅
▪ 今里筋、勝山通すぐ
▪ 住宅設備関連等に
▪ 徒歩4分にローソン
1階倉庫/作業場、2階作業場/居宅!
居宅は事務所としても。
住宅設備工事関連や、小物倉庫等に。
詳細はお気軽にお問い合わせ下さい!
その他、大阪市内東部の物件情報はこちら
➾【大阪市内東部】
貸し倉庫・貸し倉庫マートでは、倉庫・工場・事業用地の物件情報を募集しております。
掲載希望のオーナー様はお気軽にお問合せ下さい。
現地取材後動画作成も行い、【YouTube、Instagram、Twitter】での情報発信も同時にさせていただいております。
もちろん掲載費用は無料です。