『物件掲載希望』のオーナー様へ!
貸し倉庫・貸し倉庫マートでは、倉庫・工場・事業用地の物件情報を募集しております。
 掲載希望のオーナー様はお気軽にお問合せ下さい。
 現地取材後動画作成も行い、【YouTube、Instagram、Twitter】での情報発信も同時にさせていただいております。
 もちろん掲載費用は無料です。
| 所在地 | 大阪府大阪狭山市大野西700-1 | 
|---|---|
| 交通・アクセス | 南海高野線『滝谷』駅徒歩36分 府道38号線(富田林泉大津線)に面す 阪和自動車道 堺IC 約9㎞ 国道310号線 約2.3㎞  | 
| 賃料 | 330,000円(税込)/坪単価:2,177円 | 
| 敷金 | 2ヶ月 | 
| 礼金 | 1ヶ月 | 
| 土地面積 | 410㎡(124.02坪) | 
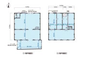
| 建物面積 | 1F:276.15㎡ 2F:224.91㎡ 合計:501.06㎡(151.57坪)  | 
| 建物構造 | 鉄骨造亜鉛メッキ鋼板葺2階建 | 
| 建築年月日 | 1983年 | 
| 用途地域 | 指定なし(市街化調整区域) | 
| 前面道路幅員 | 北側:6m 西側:6m | 
| 使用開始時期 | 2026年2月上旬 | 
| 設備 | 上水道、本下水、トイレ、電気引込有り ガス無し  | 
| 備考 | *現況使用中で引渡しは2026年2月上旬予定 *契約期間2年 *駐車場有り(複数台可能) *大型車可 *事務所有り *角地 *クレーンについては前テナントの残置物の為作動確認不明 *敷地、建物面積とも簡易実測面積の為現状面積と差違有り *現況優先 *昭和59年12月増築 *保証会社加入要(初回100%、更新年10%) *貸主非課税事業者のためインボイス登録なし  | 
大阪府大阪狭山市大野西の延床面積約151坪の貸倉庫/事務所です!
 ▪ 府道38号線(富田林泉大津線)沿い
  ▪ 事務所有り
  ▪ 駐車場有り(複数台可)
  ▪ 大型車可
  ▪ 角地
  ▪ 倉庫事務所、作業場、営業所等に
府道沿い角地で車両出入り楽々!
 事務所、駐車場有り!
 大型車可。
 倉庫事務所、作業場、営業所等に最適!
 詳細はお気軽にお問い合わせ下さい!
その他、大阪府南部の物件情報はこちら
 ➾【大阪府南部】
貸し倉庫・貸し倉庫マートでは、倉庫・工場・事業用地の物件情報を募集しております。
 掲載希望のオーナー様はお気軽にお問合せ下さい。
 現地取材後動画作成も行い、【YouTube、Instagram、Twitter】での情報発信も同時にさせていただいております。
 もちろん掲載費用は無料です。