『物件掲載希望』のオーナー様へ!
貸し倉庫・貸し倉庫マートでは、倉庫・工場・事業用地の物件情報を募集しております。
掲載希望のオーナー様はお気軽にお問合せ下さい。
現地取材後動画作成も行い、【YouTube、Instagram、Twitter】での情報発信も同時にさせていただいております。
もちろん掲載費用は無料です。
| 所在地 | 大阪府摂津市別府3丁目19-8 |
|---|---|
| 交通・アクセス | 大阪メトロ今里筋線『井高野』駅徒歩6分 府道16号線(大阪高槻線)に面す 府道2号線(大阪中央環状線)約1.7㎞ 近畿自動車道 摂津南IC 約2.2㎞ 国道479号線(内環状線)約1.8㎞ |
| 賃料 | 850,000円(税別)/坪単価:5,799円 |
| 敷金 | 4,250,000円 |
| 礼金 | 1,870,000円(税込) |
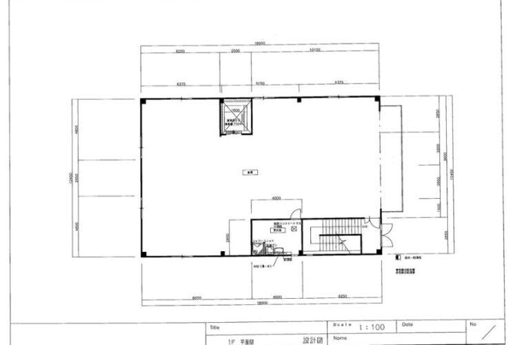
| 土地面積 | 413.98㎡(125.22坪) |
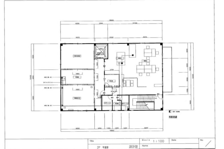
| 建物面積 | 1F:240.69㎡ 2F:243.81㎡ 合計:484.50㎡(146.56坪) |
| 建物構造 | 鉄骨造2階建 |
| 建築年月日 | 平成9年9月 |
| 用途地域 | 第一種住居地域 |
| 前面道路幅員 | 7.4m |
| 使用開始時期 | 令和8年5月(予定) |
| 備考 | *現況所有者使用中で引渡しは令和8年5月予定 *2023年に外壁及び屋根改修工事済み *軒高5m *駐車場有り(複数台可) *隣にライフォート *徒歩1分にファミリーマート、スーパーサンディ *徒歩3分にスーパーコノミヤ |
大阪府摂津市別府の延床面積約146坪の貸倉庫/事務所です!
▪ 大阪メトロ今里筋線 井高野駅徒歩6分
▪ 府道大阪高槻線沿い
▪ 近畿自動車道 摂津南IC 約2.2㎞
▪ 1階天井高く軒高5m有り
▪ 駐車場複数台可
▪ 2023年に外壁及び屋根改修工事済み
▪ 近くにスーパー、コンビニ多数
駅徒歩圏、幹線道路沿い、高速ICも近い好立地!
天井高く、駐車場複数台可!
詳細はお気軽にお問い合わせ下さい!
その他、大阪府北部の物件情報はこちら
➾【大阪府北部】
貸し倉庫・貸し倉庫マートでは、倉庫・工場・事業用地の物件情報を募集しております。
掲載希望のオーナー様はお気軽にお問合せ下さい。
現地取材後動画作成も行い、【YouTube、Instagram、Twitter】での情報発信も同時にさせていただいております。
もちろん掲載費用は無料です。