『物件掲載希望』のオーナー様へ!
貸し倉庫・貸し倉庫マートでは、倉庫・工場・事業用地の物件情報を募集しております。
掲載希望のオーナー様はお気軽にお問合せ下さい。
現地取材後動画作成も行い、【YouTube、Instagram、Twitter】での情報発信も同時にさせていただいております。
もちろん掲載費用は無料です。
| 所在地 | 大阪府門真市江端町37-20 |
|---|---|
| 交通・アクセス | JR学研都市線『住道』駅徒歩30分 京阪本線『大和田』駅徒歩32分 近鉄バス江端停徒歩2分 府道21号線(八尾枚方線)に面す 国道1号線(第二京阪道路)約1.7㎞ 国道170号線(大阪外環状線)約1.4㎞ |
| 賃料 | 330,000円(税込)/坪単価:9,090円 |
| 保証金/解約引 | 5ヶ月/2ヶ月(税込) |
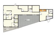
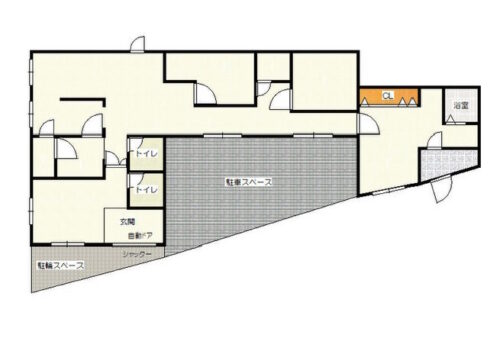
| 建物面積 | 延床面積 120㎡(36.3坪) |
| 建物構造 | 鉄骨造平家建 |
| 用途地域 | 第二種住居地域 |
| 使用開始時期 | 相談 |
| 設備 | 電気、上水道、下水道、プロパンガス |
| 備考 | *現況空家 *ロードサイド物件 *元クリニック居抜き 事務所、作業場、倉庫、店舗等可能 *駐車スペース有り(複数台可) *自転車置き場有り *エアコン、シャッター、玄関ドア、水廻り設備の維持管理、修繕は借主様負担 *消防設備の設置や増設が必要の場合は借主様負担 *保証会社加入要 全保連 委託料賃料100%要 *火災保険加入要(要見積) *掲載情報と現況に相違がある場合現況優先 |
—終了致しました!—
大阪府門真市江端町の延床面積約36坪の貸事務所/店舗/倉庫です!
▪ 府道八尾枚方線沿いロードサイド物件
▪ 第二京阪道路や外環状線近い
▪ 駐車場有り
▪ 前面道路から駐車場への進入が容易
▪ 元クリニック居抜き
▪ 事務所・作業場・店舗・倉庫等可能
幹線道路沿いロードサイド物件!
第二京阪や外環状線へのアクセス良好!
事務所・作業場・店舗・倉庫等用途色々!
詳細はお気軽にお問い合わせ下さい!
その他、大阪府東部の物件情報はこちら
➾【大阪府東部】
貸し倉庫・貸し倉庫マートでは、倉庫・工場・事業用地の物件情報を募集しております。
掲載希望のオーナー様はお気軽にお問合せ下さい。
現地取材後動画作成も行い、【YouTube、Instagram、Twitter】での情報発信も同時にさせていただいております。
もちろん掲載費用は無料です。