『物件掲載希望』のオーナー様へ!
貸し倉庫・貸し倉庫マートでは、倉庫・工場・事業用地の物件情報を募集しております。
掲載希望のオーナー様はお気軽にお問合せ下さい。
現地取材後動画作成も行い、【YouTube、Instagram、Twitter】での情報発信も同時にさせていただいております。
もちろん掲載費用は無料です。
| 所在地 | 大阪府堺市西区山田3丁987 |
|---|---|
| 交通・アクセス | JR阪和線『北信太』駅 約2.8㎞ 府道36号線(泉大津美原線)約400m 阪和自動車道 堺IC 約2.5㎞ |
| 賃料 | 300,000円(税込) |
| 敷金 | 無し |
| 礼金 | 1ヶ月 |
| 土地面積 | 約404㎡(122.21坪) |
| 建物面積 | 延床面積 約290.16㎡(87.77坪) |
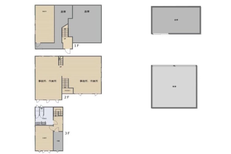
| 建物構造 | 軽量鉄骨造亜鉛メッキ鋼板葺3階建 |
| 建築年月日 | 昭和55年3月 |
| 用途地域 | 指定なし(市街化調整区域) |
| 使用開始時期 | 相談 |
| 設備 | 電気、プロパンガス、公営水道、汲取り |
| 備考 | *現況空家 *契約期間2年 *3階建1棟+平屋2棟 *駐車スペース広い *室内設備は全て残置物 *2025年8月 外壁、防水工事済み *調整区域の為認可事業等の運営ができない場合有り *条件、業種相談 |
賃料値下げしました!
大阪府堺市西区山田の延床面積約87坪の貸倉庫/事務所です!
▪ 敷地約122坪有り空地が広く多数駐車可能
▪ 泉大津美原線すぐ
▪ 阪和自動車道 堺IC 約2.5㎞
▪ 3階建1棟+平屋倉庫2棟
▪ 営業所や倉庫事務所等に
3階建+平屋2棟!
空地広く多数駐車可能!
泉大津美原線や阪和道堺IC近い!
業種諸条件ご相談ください!
詳細はお気軽にお問い合わせ下さい!
その他、大阪府堺市の物件情報はこちら
➾【大阪府堺市】
貸し倉庫・貸し倉庫マートでは、倉庫・工場・事業用地の物件情報を募集しております。
掲載希望のオーナー様はお気軽にお問合せ下さい。
現地取材後動画作成も行い、【YouTube、Instagram、Twitter】での情報発信も同時にさせていただいております。
もちろん掲載費用は無料です。