『物件掲載希望』のオーナー様へ!
貸し倉庫・貸し倉庫マートでは、倉庫・工場・事業用地の物件情報を募集しております。
掲載希望のオーナー様はお気軽にお問合せ下さい。
現地取材後動画作成も行い、【YouTube、Instagram、Twitter】での情報発信も同時にさせていただいております。
もちろん掲載費用は無料です。
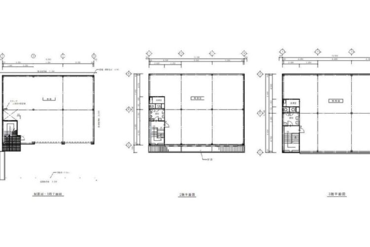
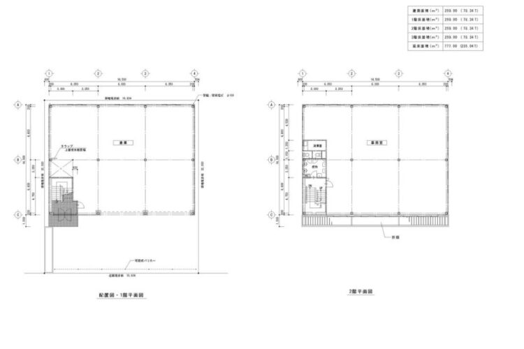
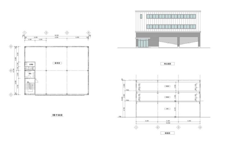
| 所在地 | 大阪府吹田市南吹田5丁目16-8 |
|---|---|
| 交通・アクセス | JRおおさか東線『南吹田』駅徒歩約12分 大阪メトロ御堂筋線『江坂』駅徒歩約14分 国道423号線(新御堂筋)約800m 国道479号線(内環状線)約1㎞ |
| 賃料 | 1,500,000円(税別)/坪単価:6,381円 |
| 敷金 | 6,000,000円 |
| 礼金 | 3,300,000円(税込) |
| 土地面積 | 431.78㎡(130.61坪) |
| 建物面積 | 1階:259.00㎡(78.34坪) 2階:259.00㎡(78.34坪) 3階:259.00㎡(78.34坪) 合計:777.00㎡(235.04坪) |
| 建物構造 | 鉄骨造亜鉛メッキ鋼板葺3階建 |
| 建築年月日 | 1990年11月 |
| 用途地域 | 第一種住居地域 |
| 前面道路幅員 | 約8.5m |
| 使用開始時期 | 相談 |
| 設備 | トイレ、キッチン、電動シャッター |
| 備考 | *現況空家 *契約期間2年 *2,3階OAフロア *駐車スペース有り(前面空地) *電気、水道料金等実費負担 |
賃料値下げしました!
大阪府吹田市南吹田の延床面積約235坪の貸倉庫/事務所です!
▪ JR南吹田駅、御堂筋線江坂駅徒歩圏
▪ 新御堂筋、内環状線すぐ
▪ 前面空地に複数台駐車可
▪ 前面道路広め(約8.5m)
▪ 営業拠点、倉庫事務所、配送センター等に
2駅徒歩圏、新御堂筋、内環状線にアクセス良好!
営業所、本社ビル、倉庫事務所、配送センター等に!
詳細はお気軽にお問い合わせ下さい!
その他、大阪府北部の物件情報はこちら
➾【大阪府北部】
貸し倉庫・貸し倉庫マートでは、倉庫・工場・事業用地の物件情報を募集しております。
掲載希望のオーナー様はお気軽にお問合せ下さい。
現地取材後動画作成も行い、【YouTube、Instagram、Twitter】での情報発信も同時にさせていただいております。
もちろん掲載費用は無料です。