『物件掲載希望』のオーナー様へ!
貸し倉庫・貸し倉庫マートでは、倉庫・工場・事業用地の物件情報を募集しております。
掲載希望のオーナー様はお気軽にお問合せ下さい。
現地取材後動画作成も行い、【YouTube、Instagram、Twitter】での情報発信も同時にさせていただいております。
もちろん掲載費用は無料です。
| 所在地 | 大阪府泉大津市汐見町2-2(地番) |
|---|---|
| 交通・アクセス | 南海本線『泉大津』駅徒歩約24分 府道29号線(大阪臨海線)約300m 阪神高速4号湾岸線 泉大津IC 約2.3㎞ |
| 賃料 | 1,800,000円(税別)/坪単価:5,885円 |
| 保証金/解約引 | 10,800,000円/3,600,000円(税別) |
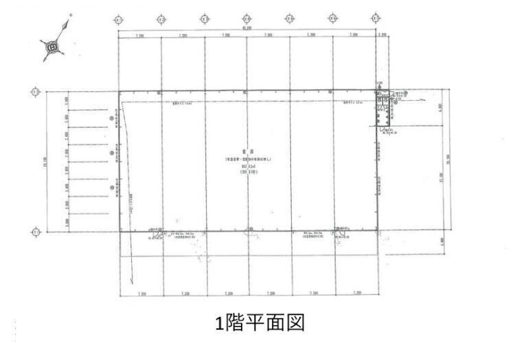
| 土地面積 | 2,119.55㎡(641.16坪) |
| 建物面積 | 1,011.12㎡(305.86坪) |
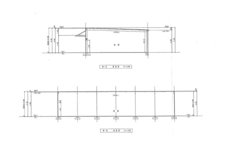
| 建物構造 | 鉄骨造平家建 |
| 建築年月日 | 2022年9月 |
| 用途地域 | 第二種住居地域 |
| 前面道路幅員 | 約8m |
| 使用開始時期 | 即時 |
| 備考 | *現況空家 *天井高:7.6~8.3m *シャッター:W6.4m×H4.6m *駐車スペース有り(前面空地) *大型車使用可 *事務所設置可(借主様費用にて) *男女別トイレ有り *家賃保証会社加入要 *借家人賠償付き保険加入要 *検査済証有り *表記情報と現況に差違がある場合現況優先 |
賃料値下げしました!
大阪府泉大津市汐見町の延床面積約305坪の貸倉庫です!
▪ 府道29号線(大阪臨海線)すぐ
▪ 阪神高速4号湾岸線 泉大津IC 約2.3㎞
▪ 天井高い平屋
▪ 駐車場広い
▪ 大型車使用可
▪ 事務所設置可(借主様費用にて)
阪神高速湾岸線ICや大阪臨海線にアクセス良好!
使い易い天井高い平屋!
駐車場広く、大型車使用可!
詳細はお気軽にお問い合わせ下さい!
その他、大阪府南部の物件情報はこちら
➾【大阪府南部】
貸し倉庫・貸し倉庫マートでは、倉庫・工場・事業用地の物件情報を募集しております。
掲載希望のオーナー様はお気軽にお問合せ下さい。
現地取材後動画作成も行い、【YouTube、Instagram、Twitter】での情報発信も同時にさせていただいております。
もちろん掲載費用は無料です。