『物件掲載希望』のオーナー様へ!
貸し倉庫・貸し倉庫マートでは、倉庫・工場・事業用地の物件情報を募集しております。
掲載希望のオーナー様はお気軽にお問合せ下さい。
現地取材後動画作成も行い、【YouTube、Instagram、Twitter】での情報発信も同時にさせていただいております。
もちろん掲載費用は無料です。
| 所在地 | 大阪府摂津市東別府4丁目7-27 |
|---|---|
| 交通・アクセス | 大阪モノレール『南摂津』駅徒歩21分 府道147号線(正雀一津屋線)至近 府道2号線(大阪中央環状線)約1.1㎞ 阪神高速12号守口線 守口IC 約4.4㎞ 近畿自動車道 摂津南IC 約2.5㎞ |
| 賃料 | 3,500,000円(税別)/坪単価:6,378円 |
| 敷金 | 21,000,000円 |
| 礼金 | 7,700,000円(税込) |
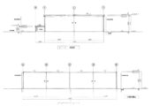
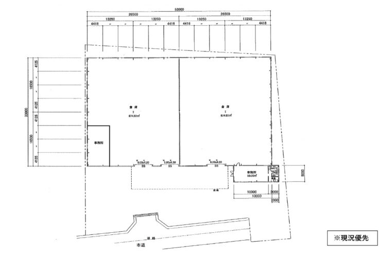
| 土地面積 | 3,039.44㎡(約919.43坪) |
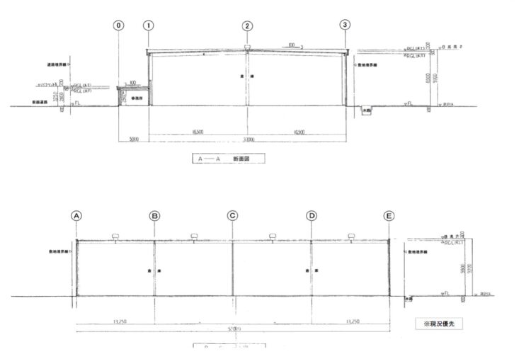
| 建物面積 | 倉庫:1,749.00㎡(約529.07坪) 事務所:65.00㎡(約19.66坪) 延床面積:1,814.00㎡(約548.74坪) |
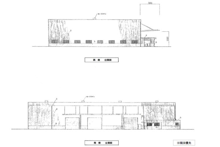
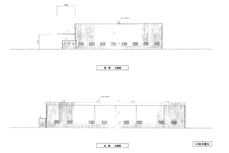
| 建物構造 | 鉄骨造亜鉛メッキ鋼板葺平家建 |
| 建築年月日 | 昭和62年11月 |
| 用途地域 | 第一種住居地域 |
| 使用開始時期 | 2026年6月1日以降 |
| 備考 | *現況使用中で引渡しは2026年6月1日以降 *軒高:9m *駐車場広い *中央環状線、近畿道、阪神高速にアクセス良好 *徒歩3分に業務スーパー *徒歩4分にダイエー |
大阪府摂津市東別府の延床面積約548坪の貸倉庫/事務所です!
▪ 希少天井高い大型平屋倉庫
▪ 駐車場広い
▪ 事務所有り
▪ 中央環状線、近畿道、阪神高速にアクセス良好
▪ 徒歩3、4分に業務スーパー、ダイエー
北摂地域希少大型平屋倉庫出ました!
軒高9m!駐車場広い!
近畿道、阪神高速にアクセス良好!
詳細はお気軽にお問い合わせ下さい!
その他、大阪府北部の物件情報はこちら
➾【大阪府北部】
貸し倉庫・貸し倉庫マートでは、倉庫・工場・事業用地の物件情報を募集しております。
掲載希望のオーナー様はお気軽にお問合せ下さい。
現地取材後動画作成も行い、【YouTube、Instagram、Twitter】での情報発信も同時にさせていただいております。
もちろん掲載費用は無料です。