『物件掲載希望』のオーナー様へ!
貸し倉庫・貸し倉庫マートでは、倉庫・工場・事業用地の物件情報を募集しております。
掲載希望のオーナー様はお気軽にお問合せ下さい。
現地取材後動画作成も行い、【YouTube、Instagram、Twitter】での情報発信も同時にさせていただいております。
もちろん掲載費用は無料です。
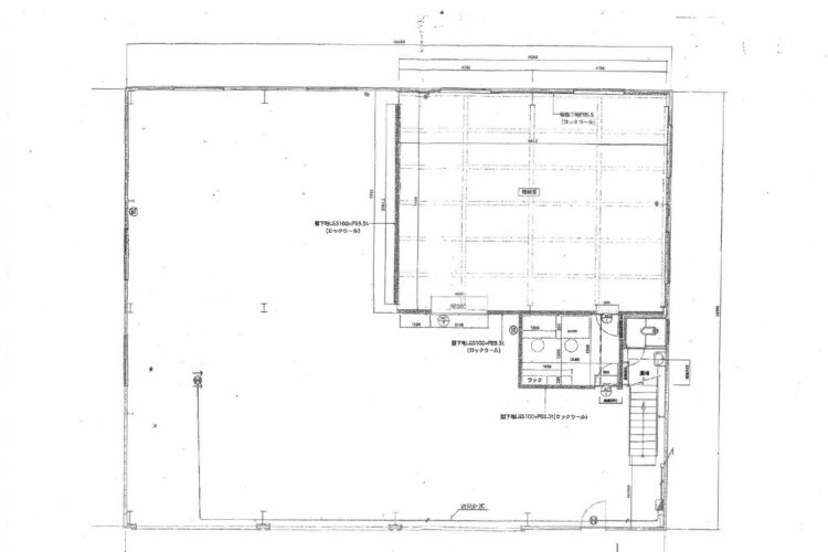
| 所在地 | 大阪府摂津市鳥飼本町3丁目2-2 |
|---|---|
| 交通・アクセス | 大阪モノレール『南摂津』駅バス約16分 鳥飼本町1丁目バス停徒歩約7分 府道15号線(八尾茨木線)約400m 府道16号線(大阪高槻線)約700m 近畿自動車道 摂津北IC 約3.4㎞ 国道1号線(寝屋川バイパス)約2㎞ |
| 売買価格 | 170,000,000円(税別) |
| 土地面積 | 466.89㎡(約141.23坪) |
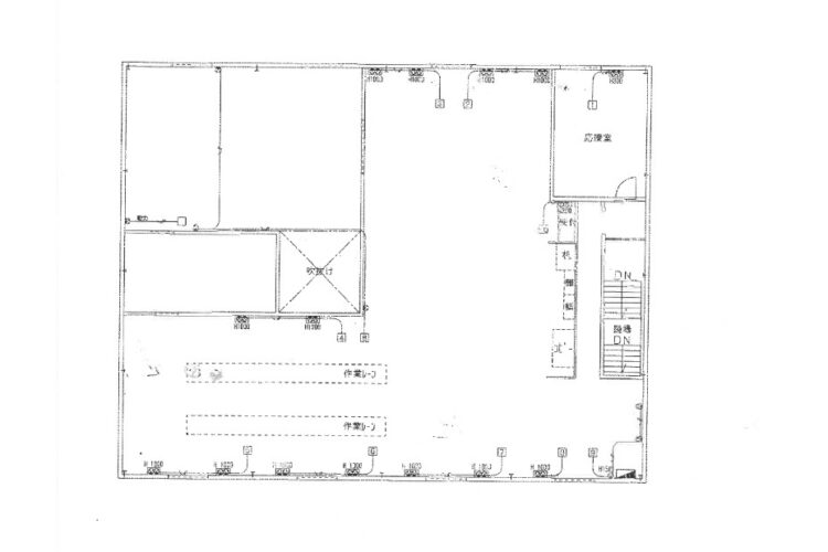
| 建物面積 | 1F:297.45㎡(約89.9坪) 2F:288.45㎡(約87.2坪) 中2F:約110㎡(約33.2坪) 合計:695.9㎡(約210.3坪) |
| 建物構造 | 鉄骨造亜鉛メッキ鋼板葺2階建 |
| 建築年月日 | 平成2年5月 |
| 用途地域 | 準工業地域 |
| 前面道路幅員 | 8.4m |
| 使用開始時期 | 相談 |
| 設備 | キュービクル90kw エアー配管 エアコン |
| 備考 | *現況空家 *現状有姿 *建ぺい率60%、容積率200% *駐車場6台可 *事務所有り *角地 |
大阪府摂津市鳥飼本町の延床面積約210坪の売工場/倉庫です!
▪ 近畿道、寝屋川バイパスにアクセス良
▪ 八尾茨木線、大阪高槻線近い
▪ 駐車場6台可
▪ キュービクル、エア配管、エアコン有り
▪ 角地
▪ 準工業地域
駐車場6台分付き!
元プラスチック加工会社!
準工業地域。
詳細はお気軽にお問い合わせ下さい!
その他、大阪府北部の物件情報はこちら
➾【大阪府北部】
貸し倉庫・貸し倉庫マートでは、倉庫・工場・事業用地の物件情報を募集しております。
掲載希望のオーナー様はお気軽にお問合せ下さい。
現地取材後動画作成も行い、【YouTube、Instagram、Twitter】での情報発信も同時にさせていただいております。
もちろん掲載費用は無料です。