『物件掲載希望』のオーナー様へ!
貸し倉庫・貸し倉庫マートでは、倉庫・工場・事業用地の物件情報を募集しております。
掲載希望のオーナー様はお気軽にお問合せ下さい。
現地取材後動画作成も行い、【YouTube、Instagram、Twitter】での情報発信も同時にさせていただいております。
もちろん掲載費用は無料です。
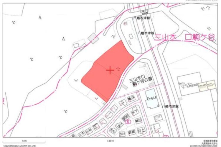
| 所在地 | 京都府京田辺市三山木口駒ケ谷19番2、19番3 |
|---|---|
| 交通・アクセス | JR片町線「JR三山木」駅 徒歩16分 近鉄京都線「三山木」駅 徒歩18分 府道22号山手幹線至近 京奈和自動車道 精華下狛IC 約3.3㎞ |
| 賃料 | 520,000円/坪単価:669円 |
| 保証金 | 1,560,000円 |
| 土地面積 | 2,566.00㎡(約776.21坪) |
| 用途地域 | 指定外(市街化調整区域) |
| 前面道路幅員 | 北東側:6.8m(27.2m接面) 南東側:4.2m(70.5m接面) 共に公道 |
| 使用開始時期 | 相談 |
| 備考 | *角地 *現況:竹林、畑 申し込み後、農転・竹林の伐採(貸主負担にて) *造成費:借主負担 *山手幹線 間口:5.5m *現況優先 *フォレストモール京田辺 徒歩5分 |
京都府京田辺市三山木口駒ケ谷の敷地面積約776坪の大型貸土地(借地)です!
▪ 角地
▪ 府道22号山手幹線至近
▪ フォレストモール京田辺 徒歩5分
▪ 資材置場に
角地!
山手幹線至近!
フォレストモール京田辺 徒歩5分!
資材置場、駐車場に!
詳細はお気軽にお問い合わせ下さい!
その他、京都府その他の物件情報はこちら
➾【京都府その他】
貸し倉庫・貸し倉庫マートでは、倉庫・工場・事業用地の物件情報を募集しております。
掲載希望のオーナー様はお気軽にお問合せ下さい。
現地取材後動画作成も行い、【YouTube、Instagram、Twitter】での情報発信も同時にさせていただいております。
もちろん掲載費用は無料です。