『物件掲載希望』のオーナー様へ!
貸し倉庫・貸し倉庫マートでは、倉庫・工場・事業用地の物件情報を募集しております。
掲載希望のオーナー様はお気軽にお問合せ下さい。
現地取材後動画作成も行い、【YouTube、Instagram、Twitter】での情報発信も同時にさせていただいております。
もちろん掲載費用は無料です。
| 所在地 | 大阪府大阪市此花区島屋3丁目8-4 |
|---|---|
| 交通・アクセス | JRゆめ咲線『安治川口』駅徒歩4分 北港通約270m 阪神高速2号淀川左岸線 正連寺川IC 約650m 国道43線 約1.6㎞ |
| 賃料 | 420,000円/坪単価:8,120円 |
| 敷金 | 2ヶ月 |
| 礼金 | 2ヶ月 |
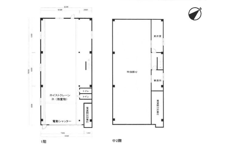
| 建物面積 | 1階:約151㎡ 2階:約20㎡ 合計:171㎡(51.72坪) |
| 建物構造 | 鉄骨造2階建 |
| 建築年月日 | 平成1年5月 |
| 用途地域 | 準工業地域 |
| 前面道路幅員 | 7.0m |
| 使用開始時期 | 即時 |
| 設備 | 都市ガス、上水道、下水道、トイレ |
| 備考 | *現況空家 *契約期間2年 *一部賃貸対象外部分有り(図面参照) *電動シャッター:W約5.5m×H約4.2m *ホイストクレーン2t有り(残置物) *駐車スペース有り *事務所有り *工場使用可 但し、騒音や臭気のでる業種は相談 *貸主は適格請求書発行業者ではありません |
—終了致しました!—
大阪府大阪市此花区島屋の延床面積約51坪の貸倉庫/工場です!
▪ JRゆめ咲線 安治川口駅徒歩4分
▪ 北港通すぐ
▪ 阪神高速湾岸線や国道43号線にアクセス良好
▪ ホイストクレーン有り
▪ 電動シャッター開口広い
▪ 事務所有り
▪ 駐車場有り
▪ 準工業地域
駅近、阪神高速や国道43号線にアクセス良好!
電動シャッター間口広く、クレーン、事務所有り!
準工業地域。
詳細はお気軽にお問い合わせ下さい!
その他、大阪市内ベイエリアの物件情報はこちら
➾【大阪市内ベイエリア】
貸し倉庫・貸し倉庫マートでは、倉庫・工場・事業用地の物件情報を募集しております。
掲載希望のオーナー様はお気軽にお問合せ下さい。
現地取材後動画作成も行い、【YouTube、Instagram、Twitter】での情報発信も同時にさせていただいております。
もちろん掲載費用は無料です。