『物件掲載希望』のオーナー様へ!
貸し倉庫・貸し倉庫マートでは、倉庫・工場・事業用地の物件情報を募集しております。
掲載希望のオーナー様はお気軽にお問合せ下さい。
現地取材後動画作成も行い、【YouTube、Instagram、Twitter】での情報発信も同時にさせていただいております。
もちろん掲載費用は無料です。
| 所在地 | 大阪府吹田市南吹田1丁目10-3 |
|---|---|
| 交通・アクセス | JRおおさか東線『南吹田』駅徒歩約3分 各線新大阪駅 約2.7㎞ 府道14号線(大阪高槻京都線)に面す 国道479号線(大阪内環状線)約1k㎞ 国道423号線(新御堂筋)約1.7㎞ |
| 賃料 | 2,500,000円(税別)/坪単価:15,697円 |
| 保証金/解約引 | 2,500,000円/8,250,000円(税込) |
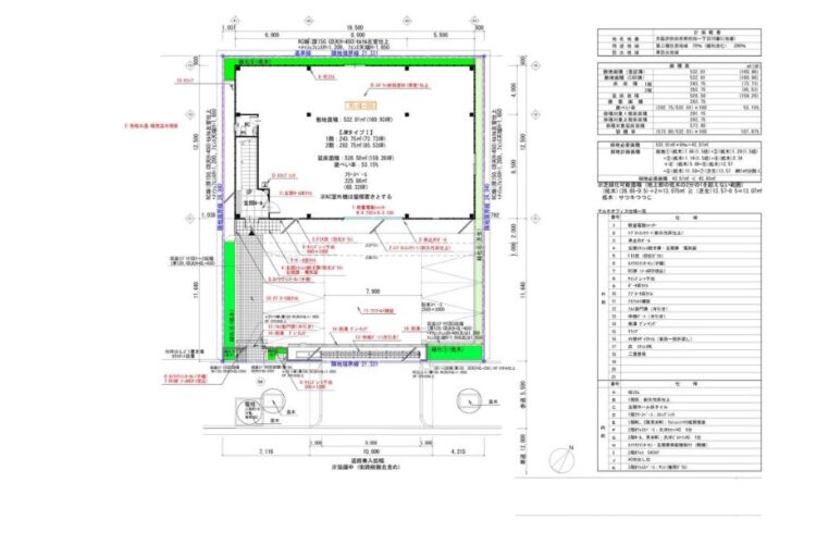
| 土地面積 | 532.01㎡(160.93坪) |
| 建物面積 | 1F 倉庫:243.75㎡(73.73坪) 2F 事務所:282.75㎡(85.53坪) 延床面積:526.50㎡(159.26坪) |
| 建物構造 | 鉄骨造ALC版貼2階建 |
| 建築年月日 | 2026年7月末予定 |
| 用途地域 | 第二種住居地域 |
| 前面道路幅員 | 約22m |
| 使用開始時期 | 2026年8月上旬(予定) |
| 設備 | 電気、動力電源、上水道、下水道 トイレ2ヶ所、給湯、エアコン オール電化、モニター付きインターホン |
| 備考 | *2026年7月末完成予定の新築 *太陽光発電(自家消費型)、蓄電池有り *1階:フォークリフト用電源、電動シャッター 2階:個別空調、OAフロア *駐車スペース有り(前面空地) *指定火災保険加入要 *入居にともなう改装工事は指定業者工事となります *徒歩1分にファミリーマート |
大阪府吹田市南吹田の延床面積約159坪の貸倉庫/事務所です!
▪ 2026年7月末完成予定の新築
▪ JR南吹田駅徒歩約3分
▪ 幅員22mの大阪高槻京都線沿い
▪ 内環状線、新御堂筋近い
▪ 1階倉庫、2階事務所、前面駐車場の人気仕様
▪ 太陽光発電設備有り
▪ 徒歩1分にファミリーマート
駅徒歩3分、幹線道路沿いの新築物件!
1階倉庫、2階事務所、前面駐車場の人気仕様!
詳細はお気軽にお問い合わせ下さい!
その他、大阪府北部の物件情報はこちら
➾【大阪府北部】
貸し倉庫・貸し倉庫マートでは、倉庫・工場・事業用地の物件情報を募集しております。
掲載希望のオーナー様はお気軽にお問合せ下さい。
現地取材後動画作成も行い、【YouTube、Instagram、Twitter】での情報発信も同時にさせていただいております。
もちろん掲載費用は無料です。