『物件掲載希望』のオーナー様へ!
貸し倉庫・貸し倉庫マートでは、倉庫・工場・事業用地の物件情報を募集しております。
掲載希望のオーナー様はお気軽にお問合せ下さい。
現地取材後動画作成も行い、【YouTube、Instagram、Twitter】での情報発信も同時にさせていただいております。
もちろん掲載費用は無料です。
| 所在地 | 大阪府東大阪市高井田27-2 |
|---|---|
| 交通・アクセス | 大阪メトロ中央線『高井田』駅徒歩3分 JRおおさか東線『高井田中央』駅徒歩5分 国道308号線(中央大通)約170m 阪神高速13号東大阪線 高井田IC 約700m |
| 賃料 | 1,550,000円(税別)/坪単価:14,640円 |
| 保証金/解約引 | 15,500,000円/5,115,000円(税込) |
| 土地面積 | 1,157.47㎡(350.13坪)の内の一部 |
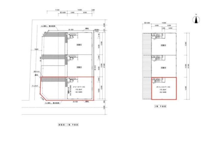
| 建物面積 | 1F 倉庫:175.00㎡(52.93坪) 2F 事務所:175.00㎡(52.93坪) 延床面積:350.00㎡(105.87坪) |
| 建物構造 | 鉄骨造ALC版貼2階建 |
| 建築年月日 | 2010年11月 |
| 用途地域 | 第一種住居地域 |
| 前面道路幅員 | 北側:約6m 西側:約6m 南側:約8m |
| 使用開始時期 | 2026年7月上旬(予定) |
| 設備 | 電気、動力電源、上水道、下水道 給湯、トイレ2ヶ所、エアコン オール電化、モニター付きインターホン |
| 備考 | *連棟倉庫の南側角棟 *1階倉庫:フォークリフト用電源、電動シャッター 2階事務所:個別空調 *駐車スペース有り(前面空地) *角地 *指定火災保険加入要 *入居にともなう改装工事は指定業者工事となります *検査済証有り |
—終了致しました!—
大阪府東大阪市高井田の延床面積約105坪の貸事務所/倉庫です!
▪ 連棟倉庫の南側角棟
▪ 中央線高井田駅徒歩3分
▪ JR高井田中央駅徒歩5分
▪ 中央大通すぐ
▪ 阪神高速高井田IC 約700m
▪ 1階倉庫、2階事務所、前面駐車場の人気仕様
▪ 駐車場広く5~6台駐車可能
2路線駅徒歩3~5分、阪神高速ICも近い抜群の立地!
1階倉庫、2階事務所、前面駐車場の人気仕様!
駐車場広く5~6台駐車可能!
色々揃った好物件です!
詳細はお気軽にお問い合わせ下さい!
その他、東大阪市の物件情報はこちら
➾【東大阪市】
貸し倉庫・貸し倉庫マートでは、倉庫・工場・事業用地の物件情報を募集しております。
掲載希望のオーナー様はお気軽にお問合せ下さい。
現地取材後動画作成も行い、【YouTube、Instagram、Twitter】での情報発信も同時にさせていただいております。
もちろん掲載費用は無料です。