『物件掲載希望』のオーナー様へ!
貸し倉庫・貸し倉庫マートでは、倉庫・工場・事業用地の物件情報を募集しております。
掲載希望のオーナー様はお気軽にお問合せ下さい。
現地取材後動画作成も行い、【YouTube、Instagram、Twitter】での情報発信も同時にさせていただいております。
もちろん掲載費用は無料です。
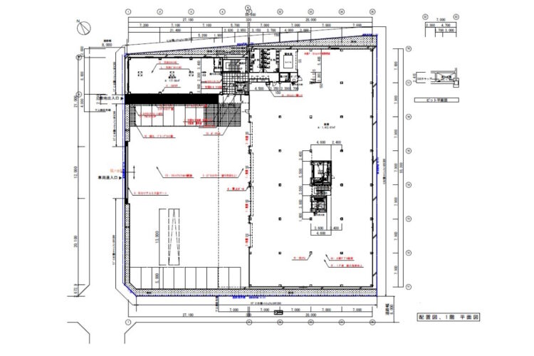
| 所在地 | 大阪府大阪市西淀川区御幣島5丁目5-23 |
|---|---|
| 交通・アクセス | JR東西線・学研都市線『加島』駅徒歩10分 阪神高速11号池田線 加島IC約450m 国道2号線1.6㎞ |
| 賃料 | 9,800,000円(税別)/坪単価:8,511円 |
| 保証金/解約引 | 98,000,000円/32,340,000円 |
| 土地面積 | 3,546.08㎡(1,072.68坪) |
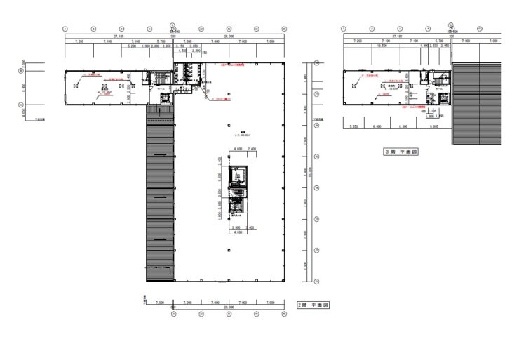
| 建物面積 | 倉庫:1階 1,548.40㎡(468.39坪) 2階 1,548.40㎡(468.39坪) 事務所:1階 236.50㎡(71.54坪) 2階 236.50㎡(71.54坪) 3階 236.50㎡(71.54坪) 延床面積:3,806.30㎡(1,151.40坪) |
| 建物構造 | 鉄骨造ALC版貼2階建(倉庫)及び3階建(事務所) |
| 建築年月日 | 2019年9月末 |
| 用途地域 | 工業地域 |
| 前面道路幅員 | 北西側約8m |
| 使用開始時期 | 2026年6月上旬(予定) |
| 設備 | 電気、動力電源、上水道、下水道、給湯、トイレ エアコン、オール電化、モニター付きインターホン |
| 備考 | *現況使用中で引渡しは2026年6月上旬予定 *荷物用EV(2.5t)、人荷用EV(2.0t)、乗用EV有り *1階倉庫:フォークリフト用電源、電動シャッター 1~3階事務所:個別空調、OAフロア *駐車スペース有り(前面空地) *三方道路 *指定火災保険加入要 *入居にとうもなう改装工事は指定業者工事となります *建築確認済証有り |
大阪府大阪市西淀川区御幣島の延床面積約1,151坪の大型貸倉庫/事務所です!
■ JR東西線『加島』駅徒歩10分
■ 阪神高速11号池田線 加島IC至近
■ 市内北部地域希少の事務所棟付き大型貸倉庫
■ 広い荷捌き駐車スペース
■ 荷物用、人荷用、乗用各種エレベーター完備
■ 事務所個別空調有り
■ 大きい庇有り
■ 工業地域
大阪市内北部地域、希少大型貸倉庫出ました!
事務所棟もあり、前面空地も広く駐車荷捌き楽々!
工業地域。
詳細はお気軽にお問い合わせ下さい!
その他、大阪市内北部の物件情報はこちら
⇒【大阪市内北部】
貸し倉庫・貸し倉庫マートでは、倉庫・工場・事業用地の物件情報を募集しております。
掲載希望のオーナー様はお気軽にお問合せ下さい。
現地取材後動画作成も行い、【YouTube、Instagram、Twitter】での情報発信も同時にさせていただいております。
もちろん掲載費用は無料です。