『物件掲載希望』のオーナー様へ!
貸し倉庫・貸し倉庫マートでは、倉庫・工場・事業用地の物件情報を募集しております。
掲載希望のオーナー様はお気軽にお問合せ下さい。
現地取材後動画作成も行い、【YouTube、Instagram、Twitter】での情報発信も同時にさせていただいております。
もちろん掲載費用は無料です。
| 所在地 | 大阪府大阪市生野区巽南3丁目19-18 |
|---|---|
| 交通・アクセス | 大阪メトロ千日前線『南巽』駅徒歩7分 国道479号線すぐ 阪神高速14号松原線 平野IC 約2.1㎞ |
| 賃料 | 1,600,000円(税込)/坪単価:4,581円 |
| 敷金 | 6ヶ月 |
| 礼金 | 2ヶ月 |
| 土地面積 | 約1,239.65㎡(約374.99坪) |
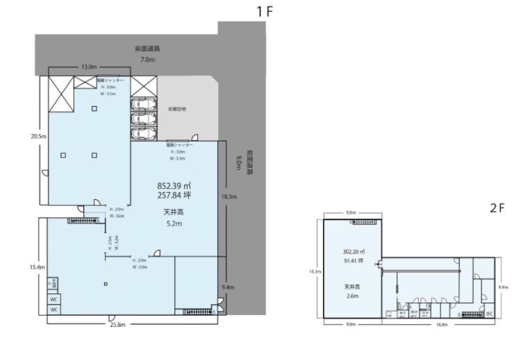
| 建物面積 | 1F:約852.39㎡(約257.84坪) 2F:約302.20㎡(約91.41坪) 合計:約1,154.59㎡(約349.25坪) |
| 建物構造 | 軽量鉄骨造亜鉛メッキ鋼板葺2階建、鉄筋コンクリート造陸屋根1階部分 |
| 建築年月日 | 1981年1月 |
| 用途地域 | 準工業地域 |
| 前面道路幅員 | 南側:9.0m 東側:7.0m |
| 使用開始時期 | 相談 |
| 備考 | *現況賃貸中で引渡し時期は相談 *駐車スペース有り(敷地内空地) *角地 *現状有姿 *倉庫部分天井高約5.2m *事務所有り *増築未登記部分有り *家賃保証会社加入要 *借家人賠償付き火災保険加入要 |
—終了致しました!—
大阪府大阪市生野区巽南の延床面積約349坪の貸工場/倉庫です!
▪ 大阪メトロ千日前線 南巽駅徒歩7分
▪ 国道479号線すぐ
▪ 駐車場有り
▪ 角地
▪ 事務所有り
▪ 準工業地域
市内希少駅徒歩圏の延床約350坪の大型物件!
角地で車両の出入りも楽々!
準工業地域。
詳細はお気軽にお問い合わせ下さい!
その他、大阪市内東部の物件情報はこちら
➾【大阪市内東部】
貸し倉庫・貸し倉庫マートでは、倉庫・工場・事業用地の物件情報を募集しております。
掲載希望のオーナー様はお気軽にお問合せ下さい。
現地取材後動画作成も行い、【YouTube、Instagram、Twitter】での情報発信も同時にさせていただいております。
もちろん掲載費用は無料です。