『物件掲載希望』のオーナー様へ!
貸し倉庫・貸し倉庫マートでは、倉庫・工場・事業用地の物件情報を募集しております。
掲載希望のオーナー様はお気軽にお問合せ下さい。
現地取材後動画作成も行い、【YouTube、Instagram、Twitter】での情報発信も同時にさせていただいております。
もちろん掲載費用は無料です。
| 所在地 | 大阪府大阪狭山市半田2丁目314-1 |
|---|---|
| 交通・アクセス | 南海高野線『金綱』駅徒歩8分 国道310号線 約700m |
| 売買価格 | 50,000,000円 |
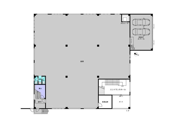
| 土地面積 | 1,670.6㎡(約505坪)*借地権 |
| 建物面積 | 1階:606.63㎡ 2階:606.63㎡ 延床面積:1213.26㎡(約367坪) |
| 建物構造 | 鉄骨造合金メッキ鋼板葺2階建 |
| 建築年月日 | 平成27年3月 |
| 用途地域 | 第二種中高層住居専用地域 |
| 前面道路幅員 | 約4.5m |
| 使用開始時期 | 相談 |
| 設備 | 電気、上水道、下水道 |
| 備考 | *現況空家 *借地権付き建物売買 *新地代相談(旧地代38万円/月) *新差入保証金相談(旧保証金456万) *地代、差入保証金は売買代金とは別途要 *事業用定期借地契約30年(公正証書作成) *公正証書作成費用は買主様負担 *建ぺい率60%、容積率200% *準防火地域 *下水道処理区域、河川保全区域 *駐車場広い *太陽光設備有り *ダムウエーター有り(残置物) *現状有姿(残置物含む) *残置物は買主様負担 *公簿取引 *契約不適合責任免責 *売却許可要 *債権者同意要 *旧オーラルケアネット販売 |
値下げしました!
大阪府大阪狭山市半田の延床面積約367坪の売事務所/倉庫です!
▪ 借地権付き建物売買
▪ 地代、差入保証金別途要
▪ 事業用定期借地契約30年
▪ 土地約505坪有り、駐車場広い
▪ 太陽光設備有り
▪ ダムウエーター有り(残置物)
▪ 南海金剛駅徒歩8分
▪ 旧オーラルケアネット販売
借地権付建物売買物件!
駅徒歩圏、土地広々505坪有り、多数駐車可能!
詳細はお気軽にお問い合わせ下さい!
その他、大阪府南部の物件情報はこちら
➾【大阪府南部】
貸し倉庫・貸し倉庫マートでは、倉庫・工場・事業用地の物件情報を募集しております。
掲載希望のオーナー様はお気軽にお問合せ下さい。
現地取材後動画作成も行い、【YouTube、Instagram、Twitter】での情報発信も同時にさせていただいております。
もちろん掲載費用は無料です。