『物件掲載希望』のオーナー様へ!
貸し倉庫・貸し倉庫マートでは、倉庫・工場・事業用地の物件情報を募集しております。
掲載希望のオーナー様はお気軽にお問合せ下さい。
現地取材後動画作成も行い、【YouTube、Instagram、Twitter】での情報発信も同時にさせていただいております。
もちろん掲載費用は無料です。
| 所在地 | 大阪府大阪市東成区神路2丁目7-3 |
|---|---|
| 交通・アクセス | 大阪メトロ中央線『深江橋』駅徒歩約9分 大阪メトロ千日前線『新深江』駅徒歩約10分 国道308号線 約350m 中央大通 約850m 阪神高速13号東大阪線 高井田IC 約1.7㎞ |
| 賃料 | 1,500,000円(税別) |
| 保証金/解約引 | 15,000,000円/4,950,000円(税込) |
| 土地面積 | 341.65㎡(103.34坪) |
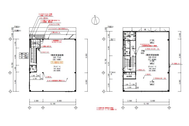
| 建物面積 | 1F 倉庫:165.77㎡(50.14坪) 2F 事務所:189.97㎡(57.46坪) 延床面積:355.74㎡(107.61坪) |
| 建物構造 | 鉄骨造ALC版貼2階建 |
| 建築年月日 | 2024年11月 |
| 用途地域 | 工業地域 |
| 前面道路幅員 | 6m |
| 使用開始時期 | 2026年7月上旬(予定) |
| 設備 | 電気、動力電源、上水道、下水道、給湯 トイレ、温水洗浄便座、エアコン、オール電化 モニター付きインターホン |
| 備考 | *2024年11月完成の築浅 *1F:フォークリフト用電源、電動シャッター 2F:個別空調、OAフロア、男女別トイレ *駐車スペース有り(前面空地) *指定火災保険加入要 *入居に伴う改装工事は指定業者工事 *検査済証有り |
大阪府大阪市東成区神路の延床面積約107坪の貸倉庫/事務所です!
▪ 2024年11月完成の築浅
▪ 大阪メトロ中央線深江橋駅徒歩約9分
▪ 大阪メトロ千日前線新深江駅徒歩約10分
▪ 国道308号線、中央大通近い
▪ 1階倉庫、2階事務所
▪ 駐車スペース有り
▪ 工業地域
2路線駅徒歩圏、幹線道路も近い工業地域!
築浅で綺麗です!
駐車場有り。
詳細はお気軽にお問い合わせ下さい!
その他、大阪市内東部の物件情報はこちら
➾【大阪市内東部】
貸し倉庫・貸し倉庫マートでは、倉庫・工場・事業用地の物件情報を募集しております。
掲載希望のオーナー様はお気軽にお問合せ下さい。
現地取材後動画作成も行い、【YouTube、Instagram、Twitter】での情報発信も同時にさせていただいております。
もちろん掲載費用は無料です。