『物件掲載希望』のオーナー様へ!
貸し倉庫・貸し倉庫マートでは、倉庫・工場・事業用地の物件情報を募集しております。
掲載希望のオーナー様はお気軽にお問合せ下さい。
現地取材後動画作成も行い、【YouTube、Instagram、Twitter】での情報発信も同時にさせていただいております。
もちろん掲載費用は無料です。
| 所在地 | 大阪府大阪市西淀川区千舟2丁目15-25 |
|---|---|
| 交通・アクセス | JR東西線『御幣島』駅徒歩7分 国道2号線に面す 阪神高速3号神戸線 大和田IC 約1㎞ 姫島IC 約1.1㎞ |
| 賃料 | 500,000円(税別)/坪単価:3,505円 |
| 敷金 | 500,000円 |
| 礼金 | 500,000円(税別) |
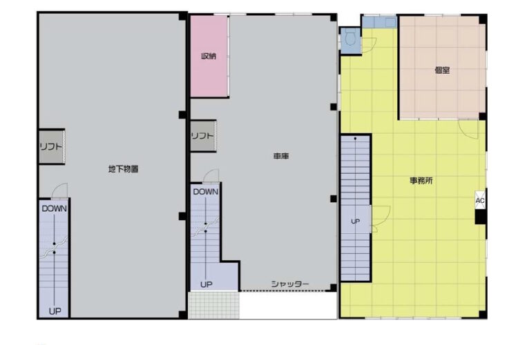
| 建物面積 | 471.48㎡(142.62坪) |
| 建物構造 | 鉄骨造地上4階地下1階建 |
| 建築年月日 | 1973年12月 |
| 用途地域 | 近隣商業地域 |
| 設備 | 電気、ガス、水道、排水 |
| 備考 | *現況空家 *駐車場有り(1階ビルトイン) *地下1階~1階リフト有り(残置物) *保証会社加入要 *火災保険加入要 *徒歩2分にスーパー・ライフ *徒歩4分にデイリーヤマザキ *徒歩4分にコーナン |
大阪府大阪市西淀川区千舟の延床面積約142坪の貸事務所/倉庫です!
▪ JR東西線 御幣島駅徒歩7分
▪ 国道2号線沿い
▪ 阪神高速神戸線 大和田IC、姫島IC近い
▪ 地下1階倉庫有り
▪ 駐車場有り(ビルトイン)
▪ 徒歩2~4分にスーパー、コンビニ等有り
御幣島駅徒歩7分、国道2号線沿い、高速ICも近い!
ビルトイン駐車場有り!
アクセス良い手頃な物件です!
詳細はお気軽にお問い合わせ下さい!
その他、大阪市内北部の物件情報はこちら
➾【大阪市内北部】
貸し倉庫・貸し倉庫マートでは、倉庫・工場・事業用地の物件情報を募集しております。
掲載希望のオーナー様はお気軽にお問合せ下さい。
現地取材後動画作成も行い、【YouTube、Instagram、Twitter】での情報発信も同時にさせていただいております。
もちろん掲載費用は無料です。