『物件掲載希望』のオーナー様へ!
貸し倉庫・貸し倉庫マートでは、倉庫・工場・事業用地の物件情報を募集しております。
掲載希望のオーナー様はお気軽にお問合せ下さい。
現地取材後動画作成も行い、【YouTube、Instagram、Twitter】での情報発信も同時にさせていただいております。
もちろん掲載費用は無料です。
| 所在地 | 大阪府東大阪市衣摺2丁目16-1 |
|---|---|
| 交通・アクセス | JRおおさか東線『衣摺加美北』駅徒歩10分 JRおおさか東線『JR長瀬』駅徒歩12分 近鉄大阪線『長瀬』駅徒歩19分 近畿自動車道 八尾IC 約2.6㎞ |
| 賃料 | 1,650,000円(税込)/坪単価:5,522円 |
| 敷金 | 2ヶ月 |
| 礼金 | 2ヶ月 |
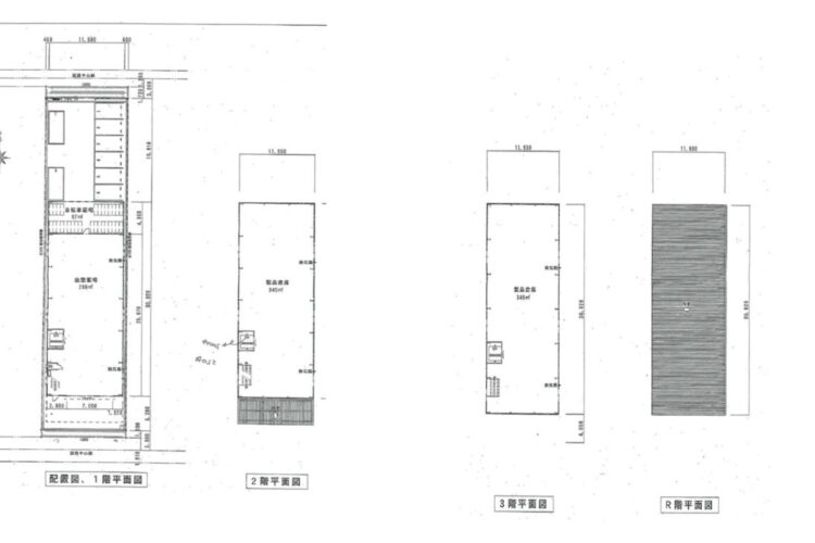
| 土地面積 | 687.77㎡(208.05坪) |
| 建物面積 | 延床面積 978.76㎡(296.07坪) |
| 建物構造 | 鉄骨造3階建 |
| 建築年月日 | 平成19年7月 |
| 用途地域 | 準工業地域 |
| 使用開始時期 | 令和8年4月下旬(予定) |
| 備考 | *契約期間5年 *二方道路で両側に駐車場有り *10台前後駐車可能 *徒歩3分にファミリーマート |
大阪府東大阪市衣摺の延床面積約296坪の貸倉庫です!
▪ 延床約300坪、敷地約200坪の大型物件
▪ JRおおさか東線 衣摺加美北駅徒歩圏
▪ 二方道路で両側に駐車場有り
▪ 合計10台前後駐車可能
▪ 準工業地域
▪ 徒歩3分にファミリーマート
東大阪市、駅徒歩圏の準工業地域に大型貸倉庫出ました!
二方道路で合計10台前後駐車可能!
詳細はお気軽にお問い合わせ下さい!
その他、東大阪市の物件情報はこちら
➾【東大阪市】
貸し倉庫・貸し倉庫マートでは、倉庫・工場・事業用地の物件情報を募集しております。
掲載希望のオーナー様はお気軽にお問合せ下さい。
現地取材後動画作成も行い、【YouTube、Instagram、Twitter】での情報発信も同時にさせていただいております。
もちろん掲載費用は無料です。