『物件掲載希望』のオーナー様へ!
貸し倉庫・貸し倉庫マートでは、倉庫・工場・事業用地の物件情報を募集しております。
掲載希望のオーナー様はお気軽にお問合せ下さい。
現地取材後動画作成も行い、【YouTube、Instagram、Twitter】での情報発信も同時にさせていただいております。
もちろん掲載費用は無料です。
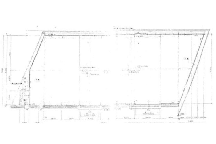
| 所在地 | 兵庫県明石市大久保町八木646-3 |
|---|---|
| 交通・アクセス | 山陽電鉄本線「江井ヶ島」駅 徒歩10分 山陽電鉄本線「中八木駅」駅 徒歩14分 県道718号明石高砂線沿い 国道250号明姫幹線 約700m |
| 賃料 | 2,200,000円(税込)/坪単価:13,879円 |
| 保証金 | 3ヶ月 |
| 礼金 | 1ヶ月 |
| 土地面積 | 869.00㎡(約262.87坪) |
| 建物面積 | 延床面積:524.00㎡(約158.51坪) |
| 建物構造 | 鉄骨造平屋建 |
| 建築年月日 | 平成4年11月 |
| 用途地域 | 準工業地域 |
| 使用開始時期 | 即時(現況空) |
| 設備 | 電気、水道 |
| 備考 | *駐車場有(複数台駐車可) *別途事務所建物有 *大型搬入口有 *契約期間 2年 *借家人賠償保険加入要 *賃貸保証会社加入要 |
兵庫県明石市大久保町八木の延床面積約158坪の貸工場/倉庫です!
▪ 準工業地域
▪ 使いやすい平屋建
▪ 駐車場有(複数台駐車可)
▪ 別途事務所建物有
▪ 大型搬入口有
▪ 山陽電鉄本線「江井ヶ島」駅 徒歩10分
▪ 県道718号明石高砂線沿い
準工業地域!
使いやすい平屋建!
接道広く、複数台駐車可!
別途事務所建物有!
大型搬入口有!
江井ヶ島駅 徒歩10分!
県道718号線沿い!
詳細はお気軽にお問い合わせ下さい!
その他、兵庫県西部の物件情報はこちら
➾【兵庫県西部】
貸し倉庫・貸し倉庫マートでは、倉庫・工場・事業用地の物件情報を募集しております。
掲載希望のオーナー様はお気軽にお問合せ下さい。
現地取材後動画作成も行い、【YouTube、Instagram、Twitter】での情報発信も同時にさせていただいております。
もちろん掲載費用は無料です。