『物件掲載希望』のオーナー様へ!
貸し倉庫・貸し倉庫マートでは、倉庫・工場・事業用地の物件情報を募集しております。
掲載希望のオーナー様はお気軽にお問合せ下さい。
現地取材後動画作成も行い、【YouTube、Instagram、Twitter】での情報発信も同時にさせていただいております。
もちろん掲載費用は無料です。
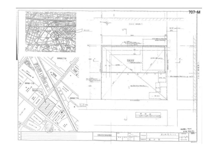
| 所在地 | 兵庫県神戸市兵庫区御所通1丁目1-27 |
|---|---|
| 交通・アクセス | JR神戸線「兵庫」駅 徒歩14分 神戸市営地下鉄海岸線「御崎公園」駅 徒歩13分 国道2号 浜手幹線 約500m 阪神高速3号神戸線 湊川出入口 約1.5㎞ |
| 賃料 | 2,000,000円(税別)/坪単価:6,793円 |
| 敷金 | 12,000,000円(賃料の6ヶ月) |
| 土地面積 | 1,322.31㎡(約399.99坪) |
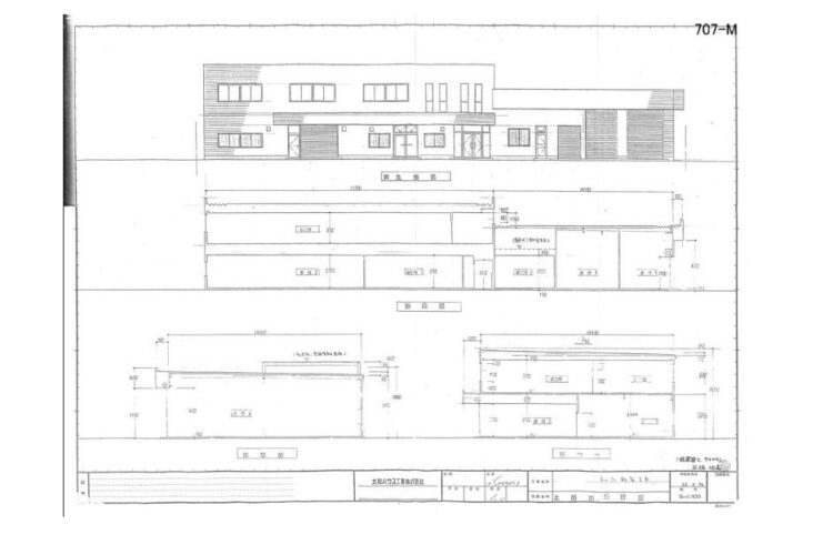
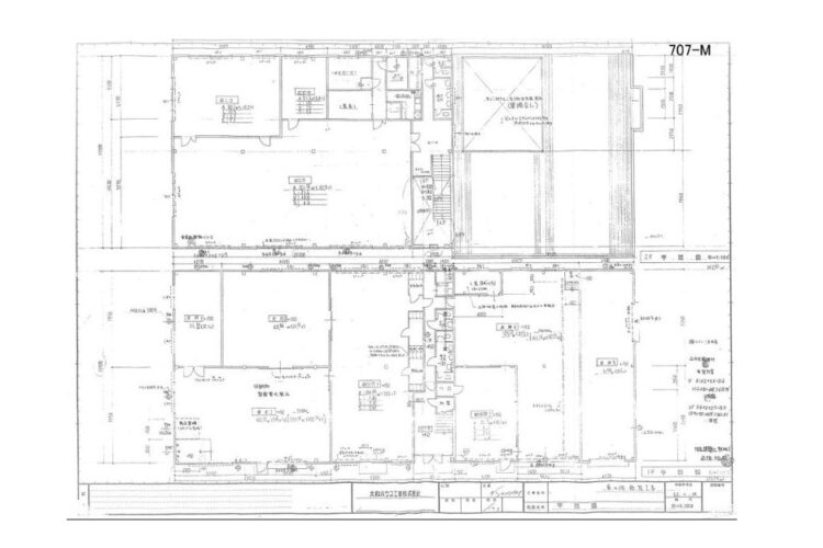
| 建物面積 | 1階:611.76㎡(185.05坪) 2階:361.54㎡(109.36坪) 延床面積:973.30㎡(294.42坪) |
| 建物構造 | 鉄骨造2階建 |
| 建築年月日 | 1988年4月 |
| 用途地域 | 工業専用地域 |
| 前面道路幅員 | 西側:約6.2m 南側:約6m |
| 使用開始時期 | 令和8年8月上旬以降 |
| 備考 | *角地 *償却引:2ヶ月 *駐車スペース有(25台以上可) *空調有(残置物) *ファミリーマート 徒歩3分 *現況優先 |
兵庫県神戸市兵庫区御所通の延床面積約294坪の貸倉庫/事務所です!
▪ 工業専用地域
▪ 駐車スペース有(25台以上可)
▪ 角地
▪ JR神戸線「兵庫」駅 徒歩14分
▪ 神戸市営地下鉄海岸線「御崎公園」駅 徒歩13分
▪ 阪神高速3号神戸線 湊川出入口 約1.5㎞
工業専用地域!
空地広く、25台以上駐車可能!
駅徒歩圏内、2路線利用可能!
角地!
湊川出入口近い!
詳細はお気軽にお問い合わせ下さい!
その他、兵庫県中部の物件情報はこちら
➾【兵庫県中部】
貸し倉庫・貸し倉庫マートでは、倉庫・工場・事業用地の物件情報を募集しております。
掲載希望のオーナー様はお気軽にお問合せ下さい。
現地取材後動画作成も行い、【YouTube、Instagram、Twitter】での情報発信も同時にさせていただいております。
もちろん掲載費用は無料です。