『物件掲載希望』のオーナー様へ!
貸し倉庫・貸し倉庫マートでは、倉庫・工場・事業用地の物件情報を募集しております。
掲載希望のオーナー様はお気軽にお問合せ下さい。
現地取材後動画作成も行い、【YouTube、Instagram、Twitter】での情報発信も同時にさせていただいております。
もちろん掲載費用は無料です。
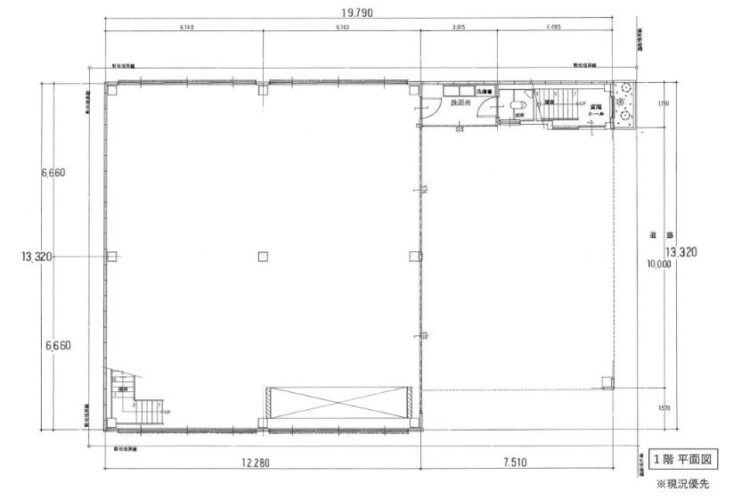
| 所在地 | 大阪府藤井寺市大井1丁目4-57 |
|---|---|
| 交通・アクセス | 近鉄南大阪線『土師ノ里』駅徒歩18分 西名阪自動車道 藤井寺IC 約800m 国道170号線(大阪外環状線)至近(約80m) |
| 賃料 | 700,000円(税別)/坪単価:3,797円 |
| 敷金 | 5,600,000円 |
| 礼金 | 1,540,000円(税込) |
| 土地面積 | 298.00㎡(90.14坪) |
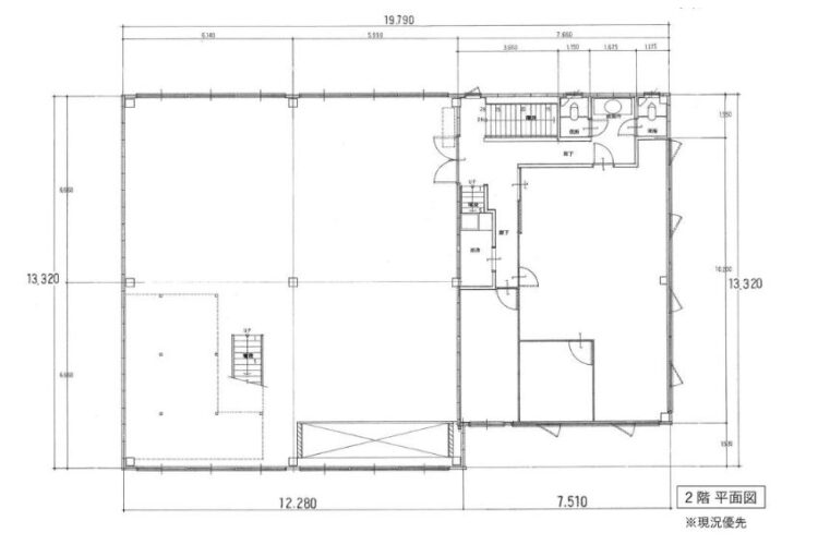
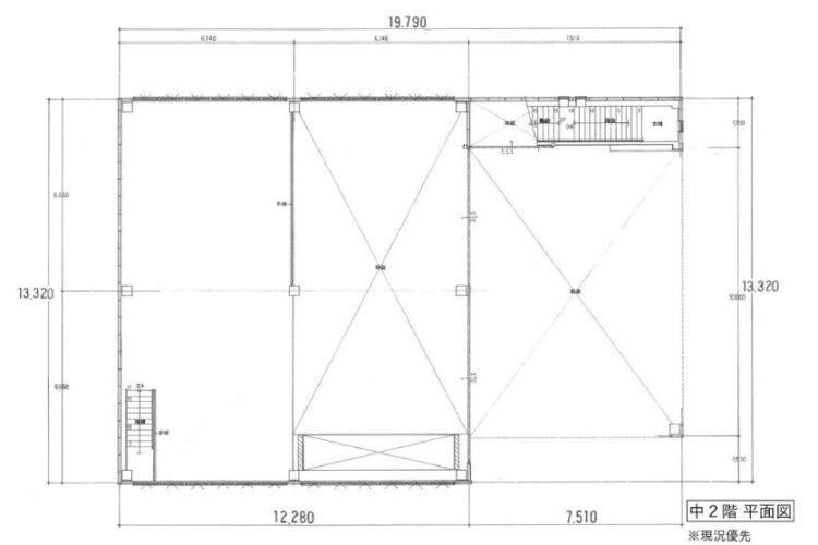
| 建物面積 | 延床面積 609.29㎡(184.31坪) |
| 建物構造 | 鉄骨造3階建 |
| 建築年月日 | 平成2年5月 |
| 用途地域 | 準工業地域 |
| 使用開始時期 | 令和8年8月上旬(期日指定) |
| 備考 | *現況賃貸中で引渡しは令和8年8月上旬予定 *ビルトイン駐車場有り *ホイスト、2.8tクレーン有り(全て残置物) *徒歩2分にローソン *徒歩3分にダイソー |
大阪府藤井寺市大井の延床面積約184坪の貸工場/倉庫です!
▪ 大阪外環状線至近
▪ 西名阪自動車道 藤井寺IC 約800m
▪ 1階天井高い
▪ ホイスト・クレーン有り
▪ ビルトイン駐車場有り
▪ 事務所有り
▪ 準工業地域
▪ 徒歩2、3分にローソン、ダイソー有り
外環状線至近、藤井寺ICすぐ!
1階天井高く使い易い倉庫!
ホイスト・クレーン、駐車場有り!
準工業地域。
詳細はお気軽にお問い合わせ下さい!
その他、大阪府南部の物件情報はこちら
➾【大阪府南部】
貸し倉庫・貸し倉庫マートでは、倉庫・工場・事業用地の物件情報を募集しております。
掲載希望のオーナー様はお気軽にお問合せ下さい。
現地取材後動画作成も行い、【YouTube、Instagram、Twitter】での情報発信も同時にさせていただいております。
もちろん掲載費用は無料です。