『物件掲載希望』のオーナー様へ!
貸し倉庫・貸し倉庫マートでは、倉庫・工場・事業用地の物件情報を募集しております。
掲載希望のオーナー様はお気軽にお問合せ下さい。
現地取材後動画作成も行い、【YouTube、Instagram、Twitter】での情報発信も同時にさせていただいております。
もちろん掲載費用は無料です。
| 所在地 | 大阪府東大阪市末広町1-3 |
|---|---|
| 交通・アクセス | 近鉄奈良線『瓢箪山』駅徒歩約7分 府道20号線(東高野街道)沿い 阪神高速13号東大阪線 水走IC 約3.2㎞ |
| 賃料 | 550,000円(税込)/坪単価:5,325円 |
| 敷金 | 無し |
| 礼金 | 2ヶ月(税別) |
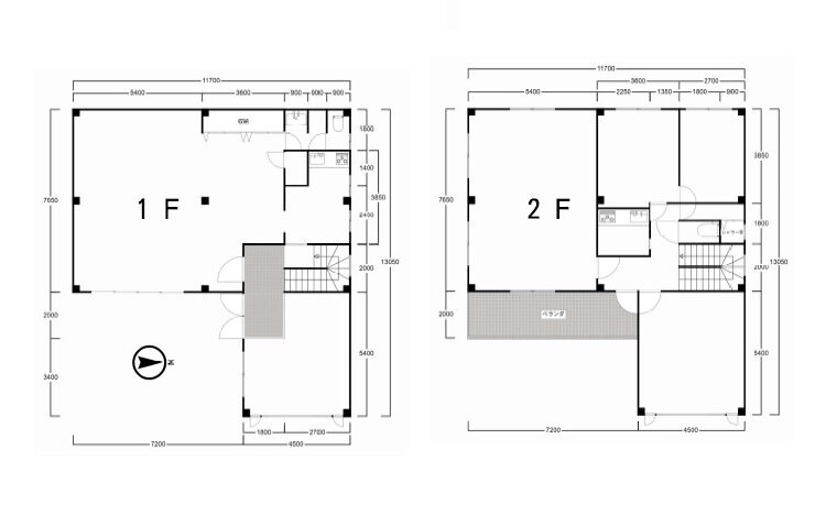
| 建物面積 | 1階:113.80㎡ 2階:113.80㎡ 3階:113.80㎡ 合計:341.40㎡(103.27坪) |
| 建物構造 | 鉄骨造陸屋根3階建 |
| 建築年月日 | 2003年5月 |
| 用途地域 | 近隣商業地域 |
| 使用開始時期 | 2026年7月以降 |
| 設備 | 電気、都市ガス、上水道、下水道、トイレ キッチン、シャワー室、給湯器 |
| 備考 | *現況使用中で引渡しは2026年5月以降 *契約期間2年 *1年未満解約違約金2ヶ月 2年未満解約違約金1ヶ月 *エアコンは残置物扱い *2024年6月屋上防水、外壁塗装済み *駐車スペース有り(2台程度可) *火災保険加入要(指定なし) *保証会社加入要(全保連) 初回100%、更新年10% *水道は直接契約 *図面等と現況が異なる場合現況優先 *準防火地域 *業種相談 *飲食店不可 *道路挟んで向かいにローソン |
大阪府東大阪市末広町の延床面積約103坪の貸事務所/倉庫です!
▪ 近鉄瓢箪山駅徒歩約7分
▪ 府道20号線(東高野街道)沿い
▪ 駐車スペース2台程度可
▪ 2024年6月屋上防水、外壁塗装済み
▪ 外壁タイル張り
▪ 営業所や住宅設備関連等に
駅徒歩圏、府道沿い!
外壁塗装済みタイル張りで綺麗です!
営業所や住宅設備関連等にいかがでしょうか。
詳細はお気軽にお問い合わせ下さい!
その他、東大阪市の物件情報はこちら
➾【東大阪市】
貸し倉庫・貸し倉庫マートでは、倉庫・工場・事業用地の物件情報を募集しております。
掲載希望のオーナー様はお気軽にお問合せ下さい。
現地取材後動画作成も行い、【YouTube、Instagram、Twitter】での情報発信も同時にさせていただいております。
もちろん掲載費用は無料です。