『物件掲載希望』のオーナー様へ!
貸し倉庫・貸し倉庫マートでは、倉庫・工場・事業用地の物件情報を募集しております。
掲載希望のオーナー様はお気軽にお問合せ下さい。
現地取材後動画作成も行い、【YouTube、Instagram、Twitter】での情報発信も同時にさせていただいております。
もちろん掲載費用は無料です。
| 所在地 | 大阪府摂津市南別府町7-19 |
|---|---|
| 交通・アクセス | 大阪メトロ今里筋線『井高野』駅徒歩9分 府道16号線(大阪高槻線)約200m 近畿自動車道 摂津南IC 約2.5㎞ 阪神高速12号守口線 守口IC 約3.2㎞ |
| 賃料 | 1,320,000円(税込)/坪単価:5,520円 |
| 敷金 | 2ヶ月 |
| 礼金 | 2ヶ月 |
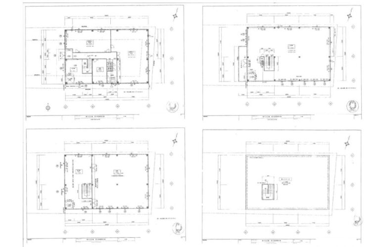
| 土地面積 | 628.00㎡(189.97坪) |
| 建物面積 | 1階:260.00㎡ 2階:260.00㎡ 3階:260.00㎡ その他:10.46㎡ 延床面積:790.46㎡(239.11坪) |
| 建物構造 | 鉄骨造3階建 |
| 建築年月日 | 2007年6月1日 |
| 用途地域 | 準工業地域 |
| 使用開始時期 | 即時 |
| 設備 | 電気、上水道、下水道、トイレ、エアコン、給湯 リフト、駐輪場 |
| 備考 | *現況空家 *契約期間2年(更新有り) *駐車場10台可 *リフト有り *大型物置4ヶ所有り *火災保険加入要 *保証会社加入要 *徒歩3分にスーパーコノミヤ *徒歩5分にライフォート |
大阪府摂津市南別府町の延床面積約239坪の貸倉庫/事務所です!
▪ 大阪メトロ今里筋線 井高野駅徒歩圏
▪ 近畿道、阪神高速守口ICにアクセス
▪ 前面空地広く、10台駐車可能
▪ 大型物置4ヶ所有り
▪ リフト有り
▪ 前面道路広く交通量少なめで車両出入り楽々
▪ 準工業地域
駅徒歩圏の準工業地域!
10台可能な大型駐車場付き!
リフト、物置4基有り!
駅徒歩圏の希少大型物件です!
詳細はお気軽にお問い合わせ下さい!
その他、大阪府北部の物件情報はこちら
➾【大阪府北部】
貸し倉庫・貸し倉庫マートでは、倉庫・工場・事業用地の物件情報を募集しております。
掲載希望のオーナー様はお気軽にお問合せ下さい。
現地取材後動画作成も行い、【YouTube、Instagram、Twitter】での情報発信も同時にさせていただいております。
もちろん掲載費用は無料です。