『物件掲載希望』のオーナー様へ!
貸し倉庫・貸し倉庫マートでは、倉庫・工場・事業用地の物件情報を募集しております。
掲載希望のオーナー様はお気軽にお問合せ下さい。
現地取材後動画作成も行い、【YouTube、Instagram、Twitter】での情報発信も同時にさせていただいております。
もちろん掲載費用は無料です。
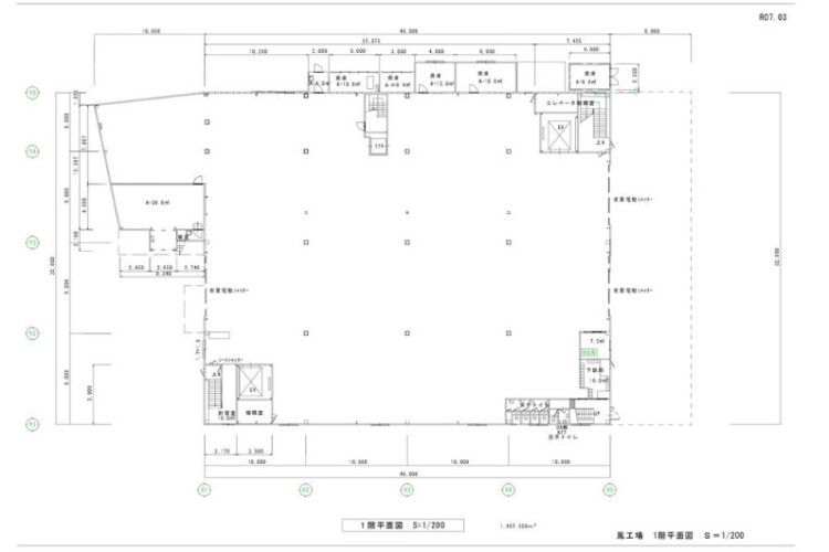
| 所在地 | 大阪府堺市中区毛穴町73−2 |
|---|---|
| 交通・アクセス | JR阪和線『津久野』駅バス乗車約3分 毛穴大橋停徒歩約2分 阪和自動車道 堺IC 約3㎞ 府道61号線(泉北2号線)約260m 国道26号線(第二阪和国道)約2.3㎞ |
| 賃料 | 5,800,000円(税込)/坪単価:1,329円 |
| 敷金 | 4ヶ月 |
| 礼金 | 2ヶ月 |
| 土地面積 | 2,702.33㎡(817.45坪) |
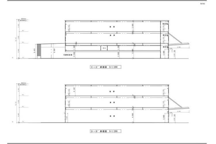
| 建物面積 | 1階:1,397.20㎡(422.65坪) 中2階:407.00㎡(123.11坪) 2階:1,312.00㎡(396.88坪) 3階:1,312.00㎡(396.88坪) 合計:4,428.20㎡(1,339.53坪) |
| 建物構造 | 鉄骨造亜鉛メッキ鋼板葺3階建 |
| 建築年月日 | 平成9年1月 |
| 用途地域 | 工業地域 |
| 使用開始時期 | 即時 |
| 備考 | *現況空家 *定期借地権契約(期間協議) *荷物用EV:2.3t 1基、1t 1基 中2階リフト250g 1基 *中2階に空調有り(残置物) *事務所有り *キュービクル(450KVA/6,600V) *床荷重:600kg/㎡ *大型車・40ft車入庫可能 *前面空地に大型屋根付きで駐車荷捌き楽々 *水道光熱費、警備、消防点検費、設備保守点検費等の実費要 *火災保険加入要 *与信により保証会社加入必要な場合有り *物流倉庫、物流加工、加工工場等に |
大阪府堺市中区毛穴町の延床面積約1,139坪の貸倉庫/工場です!
▪ 延床1,100坪越えの大型貸倉庫/工場
▪ 荷物用EV2基、リフト1基有り
▪ 事務所有り
▪ 前面空地を覆う大型屋根付きで駐車荷捌き楽々
▪ 大型車・40ft車入庫可能
▪ 泉北2号線すぐ
▪ 工業地域
▪ 物流拠点倉庫、物流加工、加工工場等に
堺市の工業地域に大型貸倉庫出ました!
EV2基、リフト、大屋根付き!
大型車・40ft車入庫可能!
物流拠点倉庫、物流加工、加工工場等に最適!
詳細はお気軽にお問い合わせ下さい!
その他、大阪府堺市の物件情報はこちら
➾【大阪府堺市】
貸し倉庫・貸し倉庫マートでは、倉庫・工場・事業用地の物件情報を募集しております。
掲載希望のオーナー様はお気軽にお問合せ下さい。
現地取材後動画作成も行い、【YouTube、Instagram、Twitter】での情報発信も同時にさせていただいております。
もちろん掲載費用は無料です。