『物件掲載希望』のオーナー様へ!
貸し倉庫・貸し倉庫マートでは、倉庫・工場・事業用地の物件情報を募集しております。
掲載希望のオーナー様はお気軽にお問合せ下さい。
現地取材後動画作成も行い、【YouTube、Instagram、Twitter】での情報発信も同時にさせていただいております。
もちろん掲載費用は無料です。
| 所在地 | 大阪府泉大津市森町2丁目3 |
|---|---|
| 交通・アクセス | 南海本線『北助松』駅徒歩9分 国道26号線(第二阪和国道)約1㎞ 府道36号線(泉大津美原線)約800m 阪神高速4号湾岸線 助松IC 約2.5㎞ 堺泉北道路 助松IC 約1㎞ |
| 売買価格 | 69,800,000円 |
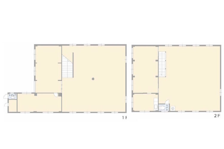
| 土地面積 | 377.69㎡(114.25坪)*公簿 |
| 建物面積 | 延床面積 383.04㎡(115.86坪) |
| 建物構造 | 鉄骨・軽量鉄骨造スレート葺一部陸屋根2階建 |
| 建築年月日 | 1968年4月 |
| 用途地域 | 第一種中高層住居専用地域・第二種中高層住居専用地域 |
| 前面道路幅員 | 8.4m(12.9m接面) |
| 使用開始時期 | 相談 |
| 設備 | トイレ2ヶ所、オープンキッチン |
| 備考 | *現況空家 *建ぺい率60%、容積率200% *駐車場5台可 *確定測量済 *地積更正済 *消防点検済 *令和8年3月屋上防水改修工事済(10年保証) *現況優先 |
値下げしました!
大阪府泉大津市森町の延床面積約115坪の売倉庫/事務所です!
▪ 南海本線 北助松駅徒歩9分
▪ 堺泉北道路 助松IC 約1㎞
▪ 阪神高速4号湾岸線 助松IC 約2.5㎞
▪ 前面空地広く駐車場5台可
▪ 前面道路広々8.4m
▪ 3月屋上防水改修工事済
▪ 倉庫事務所、営業所等に最適
駅徒歩圏、助松ICも近い好立地!
空地広々5台駐車可!
倉庫事務所、営業所等に最適!
詳細はお気軽にお問い合わせ下さい!
その他、大阪府南部の物件情報はこちら
➾【大阪府南部】
貸し倉庫・貸し倉庫マートでは、倉庫・工場・事業用地の物件情報を募集しております。
掲載希望のオーナー様はお気軽にお問合せ下さい。
現地取材後動画作成も行い、【YouTube、Instagram、Twitter】での情報発信も同時にさせていただいております。
もちろん掲載費用は無料です。