『物件掲載希望』のオーナー様へ!
貸し倉庫・貸し倉庫マートでは、倉庫・工場・事業用地の物件情報を募集しております。
掲載希望のオーナー様はお気軽にお問合せ下さい。
現地取材後動画作成も行い、【YouTube、Instagram、Twitter】での情報発信も同時にさせていただいております。
もちろん掲載費用は無料です。
| 所在地 | 大阪府東大阪市若江南町1丁目3-10 |
|---|---|
| 交通・アクセス | 近鉄難波・奈良線『若江岩田』駅徒歩17分 府道21号線(八尾枚方線)に面す 府道2号線(大阪中央環状線)約1.1㎞ 近畿自動車道 東大阪南IC 約1.2㎞ 阪神高速13号東大阪線 東大阪荒本IC 約3㎞ |
| 売買価格 | 128,000,000円 |
| 土地面積 | 263㎡(79.55坪) |
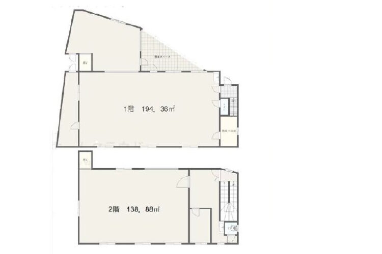
| 建物面積 | 1階:194.36㎡ 2階:138.88㎡ 合計:333.24㎡(100.8坪) |
| 建物構造 | 鉄骨造2階建 |
| 建築年月日 | 2000年9月 |
| 用途地域 | 準工業地域 |
| 使用開始時期 | 即時 |
| 設備 | 電気、トイレ2ヶ所、エアコン、リフト |
| 備考 | *現況空家 *建ぺい率60%、容積率200% *駐車場有り *賃貸も可【37-0383】 *徒歩2分にスギドラッグ |
貸し倉庫・貸し倉庫マートでは、倉庫・工場・事業用地の物件情報を募集しております。
掲載希望のオーナー様はお気軽にお問合せ下さい。
現地取材後動画作成も行い、【YouTube、Instagram、Twitter】での情報発信も同時にさせていただいております。
もちろん掲載費用は無料です。