『物件掲載希望』のオーナー様へ!
貸し倉庫・貸し倉庫マートでは、倉庫・工場・事業用地の物件情報を募集しております。
掲載希望のオーナー様はお気軽にお問合せ下さい。
現地取材後動画作成も行い、【YouTube、Instagram、Twitter】での情報発信も同時にさせていただいております。
もちろん掲載費用は無料です。
| 所在地 | 大阪府大阪市北区浮田2丁目2-24 |
|---|---|
| 交通・アクセス | 大阪メトロ谷町線・堺筋線『天神橋筋六丁目』駅徒歩5分 阪急千里線『天神橋筋六丁目』駅徒歩5分 阪急阪神各線『大阪梅田』駅 約1.1㎞ JR各線『大阪』駅 約1.4㎞ 都島通至近 国道423号線(新御堂筋)約1.1㎞ 阪神高速12号守口線 長柄IC 約1.3㎞ |
| 売買価格 | 198,000,000円(税込) |
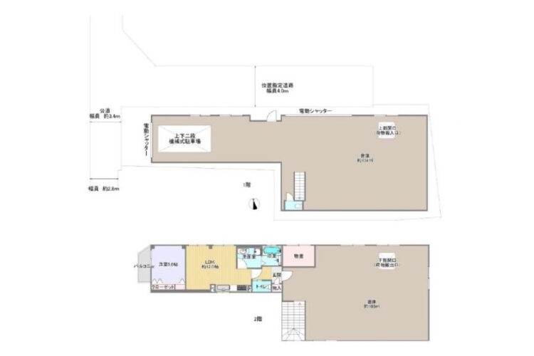
| 土地面積 | 218.08㎡(89.78坪) |
| 建物面積 | 1階:148.49㎡ 2階:148.31㎡ 延床面積:296.70㎡(89.78坪) |
| 建物構造 | 鉄骨造亜鉛メッキ鋼板葺2階建 |
| 建築年月日 | 2007年8月 |
| 用途地域 | 商業地域 |
| 前面道路幅員 | 5.5m(西側公道)*備考欄参照 |
| 使用開始時期 | 相談 |
| 設備 | ガス、上水道、下水道、電気 |
| 備考 | *現況空家 *建ぺい率80%、容積率240% *倉庫+1LDK事務所 *角地 *北側道路:私道(位置指定)幅員4m 位置指定道路負担約6.1㎡、セットバック面積約3.3㎡ *電動シャッター有り *上下二段式駐車場付き *徒歩5分にローソン、セブンイレブン |
大阪府大阪市北区浮田の延床面積約89坪の売倉庫/事務所です!
▪ 谷町線・堺筋線 天神橋筋六丁目駅徒歩5分
▪ JR大阪駅、阪急阪神、地下鉄各線約1.5㎞以内
▪ 新御堂筋、阪神高速ICも近い
▪ 角地
▪ 上下二段式駐車場付き
▪ 比較的築浅で内部も綺麗です
▪ 都市型倉庫事務所、営業所等に
天神橋筋六丁目駅徒歩5分、大阪駅も近い好立地!
上下二段式駐車場付き!
都市型倉庫事務所、営業所等に!
詳細はお気軽にお問い合わせ下さい!
その他、大阪市内中心部の物件情報はこちら
➾【大阪市内中心部】
貸し倉庫・貸し倉庫マートでは、倉庫・工場・事業用地の物件情報を募集しております。
掲載希望のオーナー様はお気軽にお問合せ下さい。
現地取材後動画作成も行い、【YouTube、Instagram、Twitter】での情報発信も同時にさせていただいております。
もちろん掲載費用は無料です。