『物件掲載希望』のオーナー様へ!
貸し倉庫・貸し倉庫マートでは、倉庫・工場・事業用地の物件情報を募集しております。
掲載希望のオーナー様はお気軽にお問合せ下さい。
現地取材後動画作成も行い、【YouTube、Instagram、Twitter】での情報発信も同時にさせていただいております。
もちろん掲載費用は無料です。
| 所在地 | 京都府京都市伏見区竹田東小屋ノ内町52 |
|---|---|
| 交通・アクセス | 近鉄京都線、地下鉄烏丸線「竹田」駅 徒歩12分 油小路通 至近 第二京阪道路 城南宮北IC 至近 国道1号線(京阪国道) 約450m 名神高速道路 京都南IC 約700m |
| 賃料 | 1,650,000円(税別)/坪単価:5,050円 |
| 保証金 | 9,900,000円(6ヶ月分) |
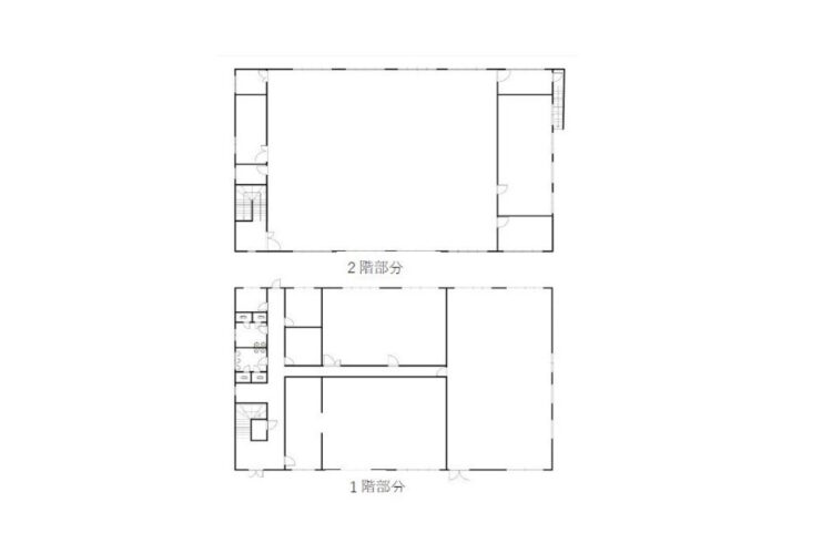
| 建物面積 | 1階:540㎡(約163.35坪) 2階:540㎡(約163.35坪) 延床面積:1,080㎡(約326.7坪) |
| 建物構造 | 鉄骨造亜鉛メッキ鋼板葺2階建 |
| 建築年月日 | 昭和57年9月 |
| 用途地域 | 第二種住居地域 |
| 前面道路幅員 | 南側:約22m(約33m接面) |
| 使用開始時期 | 賃貸中(2026年7月予定) |
| 設備 | 電気、上水、浄化槽 |
| 備考 | *駐車場有(複数台駐車可能) *設備機器は残置物扱い *セブンイレブン 徒歩2分 *現況優先 |
京都府京都市伏見区竹田東小屋ノ内町の延床面積約326坪の貸事務所/倉庫です!
▪ 前面道路広く、複数台駐車可能
▪ 近鉄京都線、地下鉄烏丸線「竹田」駅 徒歩12分
▪ 油小路通 至近
▪ 第二京阪道路 城南宮北IC 近い
▪ 国道1号線(京阪国道) 約450m
▪ 名神高速道路 京都南IC 約700m
▪ セブンイレブン 徒歩2分
前面道路広く、複数台駐車可能!
竹田駅 徒歩12分!
油小路通、城南宮北IC 近い!
京阪国道、京都南IC 近い!
セブンイレブン 徒歩2分!
詳細はお気軽にお問い合わせ下さい!
その他、京都市内の物件情報はこちら
➾【京都市内】
貸し倉庫・貸し倉庫マートでは、倉庫・工場・事業用地の物件情報を募集しております。
掲載希望のオーナー様はお気軽にお問合せ下さい。
現地取材後動画作成も行い、【YouTube、Instagram、Twitter】での情報発信も同時にさせていただいております。
もちろん掲載費用は無料です。