『物件掲載希望』のオーナー様へ!
貸し倉庫・貸し倉庫マートでは、倉庫・工場・事業用地の物件情報を募集しております。
掲載希望のオーナー様はお気軽にお問合せ下さい。
現地取材後動画作成も行い、【YouTube、Instagram、Twitter】での情報発信も同時にさせていただいております。
もちろん掲載費用は無料です。
| 所在地 | 大阪府大阪市天王寺区大道4丁目8−20 |
|---|---|
| 交通・アクセス | JR環状線『寺田町』駅徒歩4分 JR各線『天王寺』駅徒歩11分 大阪メトロ御堂筋線・谷町線『天王寺』駅徒歩11分 近鉄南大阪線阿部野橋駅徒歩14分 国道25号線約100m 阪神高速14号松原線 天王寺IC 約1.4㎞ 阪神高速14号松原線 阿部野IC 約1.7㎞ |
| 売買価格 | 158,000,000円(税込) |
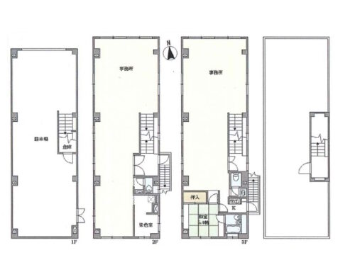
| 土地面積 | 108.98㎡(32.96坪)*公簿 |
| 建物面積 | 241.53㎡(73.06坪) |
| 建物構造 | 鉄骨造3階建 |
| 建築年月日 | 2009年1月 |
| 用途地域 | 第二種住居地域 |
| 前面道路幅員 | 約8.0m(間口5.8m) |
| 使用開始時期 | 相談 |
| 設備 | 故上水道、公共下水、都市ガス |
| 備考 | *現況空家 *建ぺい率80%、容積率300% *1階駐車場兼倉庫(普通車3台可能) *和室、ユニットバス有り *徒歩1分にローソン *徒歩4分にスーパーライフ *徒歩3分にドン・キホーテ |
大阪府大阪市天王寺区大道の延床面積約73坪の売事務所/倉庫です!
▪ JR環状線 寺田町駅徒歩4分
▪ JR、地下鉄各線天王寺駅徒歩圏
▪ 阪神高速ICも近い
▪ 1階3台駐車可能
▪ 前面道路広々8m
▪ 徒歩4分以内にコンビニ、スーパーがあり便利
▪ 都市型営業所等に
寺田町駅徒歩4分、各線天王寺駅も近い好立地!
1階倉庫兼駐車場で最大3台可能!
前面道路広々交通量少なく、車両の出入り楽々!
詳細はお気軽にお問い合わせ下さい!
その他、大阪市内中心部の物件情報はこちら
➾【大阪市内中心部】
貸し倉庫・貸し倉庫マートでは、倉庫・工場・事業用地の物件情報を募集しております。
掲載希望のオーナー様はお気軽にお問合せ下さい。
現地取材後動画作成も行い、【YouTube、Instagram、Twitter】での情報発信も同時にさせていただいております。
もちろん掲載費用は無料です。