『物件掲載希望』のオーナー様へ!
貸し倉庫・貸し倉庫マートでは、倉庫・工場・事業用地の物件情報を募集しております。
掲載希望のオーナー様はお気軽にお問合せ下さい。
現地取材後動画作成も行い、【YouTube、Instagram、Twitter】での情報発信も同時にさせていただいております。
もちろん掲載費用は無料です。
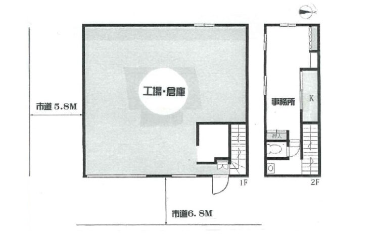
| 所在地 | 大阪府大阪市浪速区久保吉1丁目1-14 |
|---|---|
| 交通・アクセス | 南海汐見橋線『芦原町』駅徒歩4分 JR環状線『芦原橋』駅徒歩6分 大阪メトロ長堀鶴見緑地線『大正』駅徒歩12分 府道29号線(新なにわ筋 )約90m 大浪通 約150m 阪神高速15号堺線 芦原IC 約200m |
| 売買価格 | 80,984,000円 |
| 土地面積 | 165.28㎡(49.99坪) |
| 建物面積 | 倉庫:84.64㎡ 事務所:1階 45.00㎡ 2階 45.00㎡ 延床面積:174.64㎡(52.82坪) |
| 建物構造 | 鉄骨造亜鉛メッキ鋼板葺平屋建 |
| 建築年月日 | 昭和41年10月 |
| 用途地域 | 準工業地域 |
| 前面道路幅員 | 東側:6.8m 南側:5.8m |
| 使用開始時期 | 相談 |
| 設備 | 公営水道、公共下水、都市ガス |
| 備考 | *現況倉庫として使用中で引渡し時期は相談 *建ぺい率60%、容積率200% *角地 *現状有姿 *動産撤去引渡し *公簿取引 *境界線非明示 *契約不適合責任免責 *準防火地域 *現況と図面が相違する場合現況優先 |
大阪府大阪市浪速区久保吉の延床面積約52坪の売工場/倉庫です!
▪ 南海汐見橋線 芦原町駅徒歩4分
▪ JR環状線 芦原橋駅徒歩6分
▪ 新なにわ筋、大浪通すぐ
▪ 阪神高速堺線 芦原IC 約200m
▪ 角地の整形地
▪ 事務所有り
▪ 準工業地域
▪ 倉庫工場、営業所等建て替え用地としても
複数駅徒歩圏、幹線道路や高速ICも近い好立地!
角地の整形地で倉庫工場建替え用地としても!
準工業地域。
詳細はお気軽にお問い合わせ下さい!
その他、大阪市内中心部の物件情報はこちら
➾【大阪市内中心部】
貸し倉庫・貸し倉庫マートでは、倉庫・工場・事業用地の物件情報を募集しております。
掲載希望のオーナー様はお気軽にお問合せ下さい。
現地取材後動画作成も行い、【YouTube、Instagram、Twitter】での情報発信も同時にさせていただいております。
もちろん掲載費用は無料です。