『物件掲載希望』のオーナー様へ!
貸し倉庫・貸し倉庫マートでは、倉庫・工場・事業用地の物件情報を募集しております。
掲載希望のオーナー様はお気軽にお問合せ下さい。
現地取材後動画作成も行い、【YouTube、Instagram、Twitter】での情報発信も同時にさせていただいております。
もちろん掲載費用は無料です。
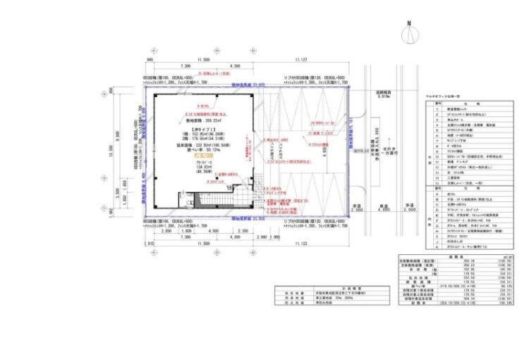
| 所在地 | 大阪府大阪市東成区深江南2丁目29-1(地番) |
|---|---|
| 交通・アクセス | 大阪メトロ千日前線『新深江』駅徒歩約7分 大阪メトロ中央線『深江橋』駅徒歩約12分 国道479号線(内環状線) 約90m 阪神高速13号東大阪線 高井田IC 約1.6㎞ |
| 賃料 | 1,500,000円(税別)/坪単価:14,913円 |
| 保証金/解約引 | 15,000,000円/4,950,000円(税込) |
| 土地面積 | 358.23㎡(108.36坪) |
| 建物面積 | 1F 倉庫:152.95㎡(46.26坪) 2F 事務所:179.55㎡(54.31坪) 延床面積:332.50㎡(100.58坪) |
| 建物構造 | 鉄骨造ALC版貼2階建 |
| 建築年月日 | 20263年9月(予定) |
| 用途地域 | 準工業地域 |
| 前面道路幅員 | 8m |
| 使用開始時期 | 2026年10月上旬(予定) |
| 設備 | 電気、動力電源、上水道、下水道、給湯 トイレ2ヶ所、エアコン、モニター付きインターホン |
| 備考 | *2026年9月完成予定の新築 *駐車場有り(前面空地) *1F:フォークリフト用電源、電動シャッター 2F:個別空調、OAフロア、男女別トイレ *オール電化 *指定火災保険加入要 *入居にともなう改装工事は指定業者工事となります *徒歩3分にセブンイレブン |
大阪府大阪市東成区深江南の延床面積約100坪の貸倉庫/事務所です!
▪ 2026年9月完成予定の新築
▪ 千日前線 新深江駅徒歩約7分
▪ 内環状線すぐ
▪ 1階倉庫、2階事務所、前面駐車場の人気仕様
▪ 1階フォークリフト用電源、電動シャッター
▪ 2階OAフロア、個別空調
▪ 準工業地域
▪ 徒歩3分にセブンイレブン
9月完成予定の新築!
階倉庫、2階事務所、前面駐車場の人気仕様!
準工業地域。
詳細はお気軽にお問い合わせ下さい!
その他、大阪市内東部の物件情報はこちら
➾【大阪市内東部】
貸し倉庫・貸し倉庫マートでは、倉庫・工場・事業用地の物件情報を募集しております。
掲載希望のオーナー様はお気軽にお問合せ下さい。
現地取材後動画作成も行い、【YouTube、Instagram、Twitter】での情報発信も同時にさせていただいております。
もちろん掲載費用は無料です。