『物件掲載希望』のオーナー様へ!
貸し倉庫・貸し倉庫マートでは、倉庫・工場・事業用地の物件情報を募集しております。
掲載希望のオーナー様はお気軽にお問合せ下さい。
現地取材後動画作成も行い、【YouTube、Instagram、Twitter】での情報発信も同時にさせていただいております。
もちろん掲載費用は無料です。
| 所在地 | 大阪府大阪市旭区赤川4丁目1-4 |
|---|---|
| 交通・アクセス | JRおおさか東線『城北公園通』駅徒歩10分 城北公園通至近 阪神高速12号守口線 都島IC 約750m、城北IC約1.2㎞ |
| 賃料 | 550,000円(税込)/坪単価:4,681円 |
| 保証金/解約引 | 6ヶ月/2ヶ月 |
| 土地面積 | 167.39㎡(50.63坪) |
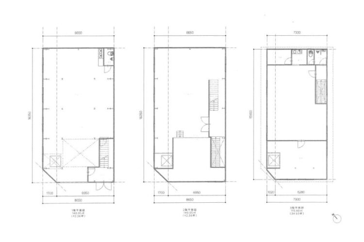
| 建物面積 | 1階:137.61㎡ 2階:137.61㎡ 3階:113.20㎡ 合計:388.42㎡(117.49坪) |
| 建物構造 | 鉄骨造・軽量鉄骨造3階建 |
| 建築年月日 | 昭和43年 |
| 用途地域 | 第一種住居地域・近隣商業地域 |
| 使用開始時期 | 令和8年4月上旬 |
| 備考 | *現況賃貸中で引渡しは令和8年4月上旬 *荷物用リフト有り(残置物) *角地 *営業所、倉庫事務所等に *徒歩1分にファミリーマート、業務スーパー |
大阪府大阪市旭区赤川の延床面積約117坪の貸倉庫/事務所です!
▪ JRおおさか東線 城北公園通駅徒歩10分
▪ 城北公園通至近
▪ 阪神高速守口線 都島IC、城北IC近い
▪ 角地で前面道路広め
▪ 荷物用リフト有り(残置物)
▪ 営業所、倉庫事務所等に
駅徒歩圏、阪神高速ICも近い立地!
荷物用リフト有り!
都市型営業所、倉庫事務所等に!
詳細はお気軽にお問い合わせ下さい!
その他、大阪市内東部の物件情報はこちら
➾【大阪市内東部】
貸し倉庫・貸し倉庫マートでは、倉庫・工場・事業用地の物件情報を募集しております。
掲載希望のオーナー様はお気軽にお問合せ下さい。
現地取材後動画作成も行い、【YouTube、Instagram、Twitter】での情報発信も同時にさせていただいております。
もちろん掲載費用は無料です。