『物件掲載希望』のオーナー様へ!
貸し倉庫・貸し倉庫マートでは、倉庫・工場・事業用地の物件情報を募集しております。
掲載希望のオーナー様はお気軽にお問合せ下さい。
現地取材後動画作成も行い、【YouTube、Instagram、Twitter】での情報発信も同時にさせていただいております。
もちろん掲載費用は無料です。
| 所在地 | 大阪府大阪市平野区長吉長原1丁目1-20 |
|---|---|
| 交通・アクセス | 大阪メトロ谷町線『出戸』駅徒歩4分 府道179号線(長居公園通)約100m 府道2号線(大阪中央環状線)約550m 近畿自動車道 長原IC 約1.2㎞ 阪神高速14号松原線 喜連瓜破IC 約1.9㎞ |
| 賃料 | 330,000円(税込)/坪単価:4,603.円 |
| 敷金 | 1ヶ月 |
| 礼金 | 1.5ヶ月 |
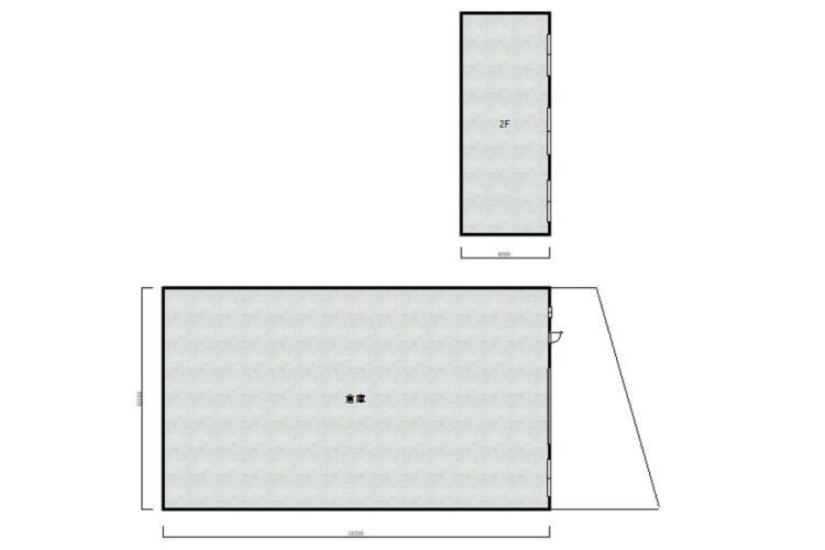
| 建物面積 | 237㎡(71.69坪) |
| 建物構造 | 鉄骨造2階建 |
| 建築年月日 | 1990年2月 |
| 用途地域 | 第一種住居地域 |
| 使用開始時期 | 2026年5月上旬 |
| 設備 | トイレ |
| 備考 | *現況使用中で2026年4月末退去予定 *契約期間2年(更新料無し) *駐車スペース有り(前面空地) *火災保険加入要 *家賃保証会社加入要(初回100%) *徒歩2分にローソン *徒歩3分にセブンイレブン、スギ薬局 |
大阪府大阪市平野区長吉長原の延床面積約71坪の貸倉庫です!
▪ 大阪メトロ谷町線 出戸駅徒歩4分
▪ 長居公園通、中央環状線近い
▪ 近畿道 長原IC 約1.2㎞
▪ 阪神高速松原線 喜連瓜破IC 約1.9㎞
▪ 駐車スペース有り(前面空地)
▪ 平屋部分多く天井高い
▪ 徒歩2,3分にコンビニ2軒
駅徒歩4分、幹線道路、高速ICも近い好立地!
駐車場付き、天井高い使い易い手頃な物件です!
詳細はお気軽にお問い合わせ下さい!
その他、大阪市内南部の物件場はこちら
➾【大阪市内南部】
貸し倉庫・貸し倉庫マートでは、倉庫・工場・事業用地の物件情報を募集しております。
掲載希望のオーナー様はお気軽にお問合せ下さい。
現地取材後動画作成も行い、【YouTube、Instagram、Twitter】での情報発信も同時にさせていただいております。
もちろん掲載費用は無料です。