『物件掲載希望』のオーナー様へ!
貸し倉庫・貸し倉庫マートでは、倉庫・工場・事業用地の物件情報を募集しております。
掲載希望のオーナー様はお気軽にお問合せ下さい。
現地取材後動画作成も行い、【YouTube、Instagram、Twitter】での情報発信も同時にさせていただいております。
もちろん掲載費用は無料です。
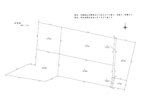
| 所在地 | 大阪府大阪狭山市茱萸木8丁目2070他 |
|---|---|
| 交通・アクセス | 南海高野線『滝谷』駅 約1.6㎞ 府道38号線(富田林泉大津線)沿い 国道310号線 約850m |
| 賃料 | 880,000円/坪単価:1,179円 |
| 保証金 | 協議 |
| 礼金 | 協議 |
| 土地面積 | 2,425.42㎡(746.26坪) |
| 用途地域 | 第二種住居地域 |
| 使用開始時期 | 相談 |
| 備考 | *現況更地 *定期借地契約(期間等相談) *建ぺい率60%、容積率200% *建築条件有り(要問い合わせ) *配送センター、物流センター、倉庫等建築用地に最適 |
大阪府大阪狭山市茱萸木の敷地面積約746坪の貸土地(借地)です!
▪ 約750坪の広々貸土地
▪ 府道沿い
▪ 国道310号線 約850m
▪ 定期借地契約(期間等相談)
▪ 建築条件有り(要問い合わせ)
▪ 配送センター、物流センター、倉庫等建築用地等に最適
▪ 資材置場、車両置場等にも
府道沿い、約750坪の大型貸土地!
配送センター、物流センター、倉庫等建築用地に!
詳細はお気軽にお問い合わせ下さい!
その他、大阪府南部の物件情報はこちら
➾【大阪府南部】
貸し倉庫・貸し倉庫マートでは、倉庫・工場・事業用地の物件情報を募集しております。
掲載希望のオーナー様はお気軽にお問合せ下さい。
現地取材後動画作成も行い、【YouTube、Instagram、Twitter】での情報発信も同時にさせていただいております。
もちろん掲載費用は無料です。