『物件掲載希望』のオーナー様へ!
貸し倉庫・貸し倉庫マートでは、倉庫・工場・事業用地の物件情報を募集しております。
掲載希望のオーナー様はお気軽にお問合せ下さい。
現地取材後動画作成も行い、【YouTube、Instagram、Twitter】での情報発信も同時にさせていただいております。
もちろん掲載費用は無料です。
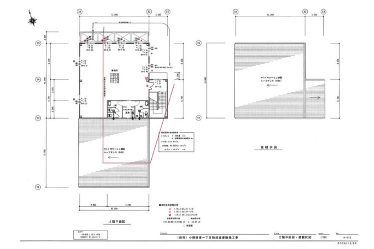
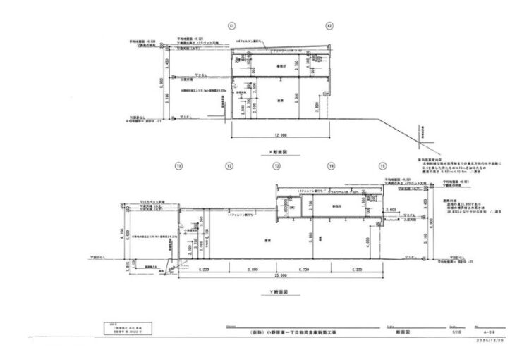
| 所在地 | 大阪府箕面市小野原東1丁目1-1の一部他 |
|---|---|
| 交通・アクセス | 大阪モノレール『豊川』駅徒歩11分 国道171号線に面す 国道423号線(新御堂筋)約3㎞ 名神高速道路 茨木IC 約4㎞ |
| 賃料 | 1,650,000円(税込)/坪単価:10,934円 |
| 保証金/解約引 | 8ヶ月/2ヶ月 |
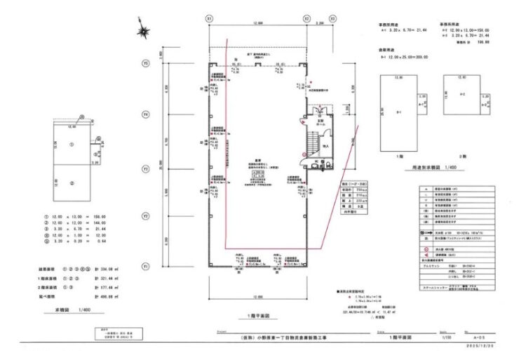
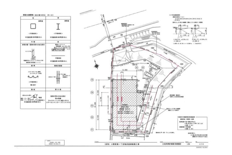
| 土地面積 | 998.36㎡(302坪)*法面(約298㎡)含む |
| 建物面積 | 1階:321.44㎡(97.23坪) 2階:177.44㎡(53.67坪) 合計:498.88㎡(150.90坪) |
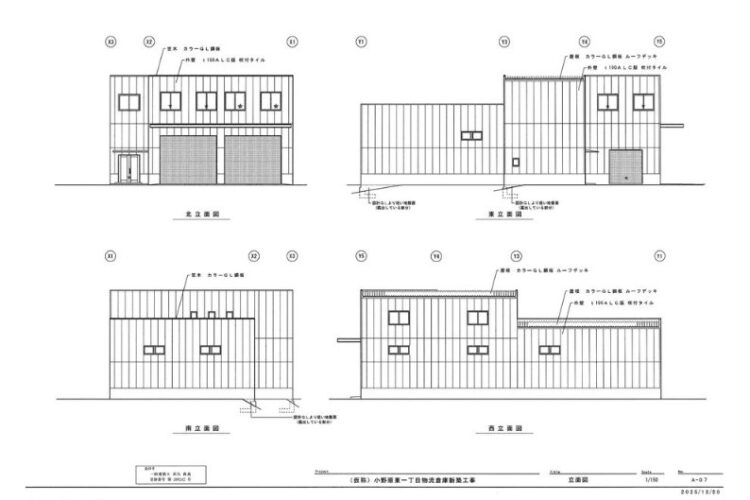
| 建物構造 | 鉄骨造2階建 |
| 建築年月日 | 2026年7月(予定) |
| 用途地域 | 準住居地域 |
| 使用開始時期 | 2026年8月以降 |
| 備考 | *2026年7月竣工予定の新築 *前面空地:約320m(96.8坪) *その他諸費用:警備費、消防点検費、ゴミ処理費、水道光熱費 *隣はまいどおおきに食堂 |
大阪府箕面市小野原東の延床面積約150坪の貸倉庫/事務所です!
▪ 2026年7月完成予定の新築
▪ 大阪モノレール 豊川駅徒歩11分
▪ 国道171号線沿い
▪ 新御堂筋、名神茨木ICにアクセス
▪ 前面空地約96坪有り、駐車荷捌きに便利
▪ 本社ビル、営業所、倉庫事務所等に
7月完成予定の新築!
駅徒歩圏、国道171号線沿いの好立地!
前面空地約96坪有り複数台駐車可!
詳細はお気軽にお問い合わせ下さい!
その他、大阪府北部の物件情報はこちら
➾【大阪府北部】
貸し倉庫・貸し倉庫マートでは、倉庫・工場・事業用地の物件情報を募集しております。
掲載希望のオーナー様はお気軽にお問合せ下さい。
現地取材後動画作成も行い、【YouTube、Instagram、Twitter】での情報発信も同時にさせていただいております。
もちろん掲載費用は無料です。