『物件掲載希望』のオーナー様へ!
貸し倉庫・貸し倉庫マートでは、倉庫・工場・事業用地の物件情報を募集しております。
掲載希望のオーナー様はお気軽にお問合せ下さい。
現地取材後動画作成も行い、【YouTube、Instagram、Twitter】での情報発信も同時にさせていただいております。
もちろん掲載費用は無料です。
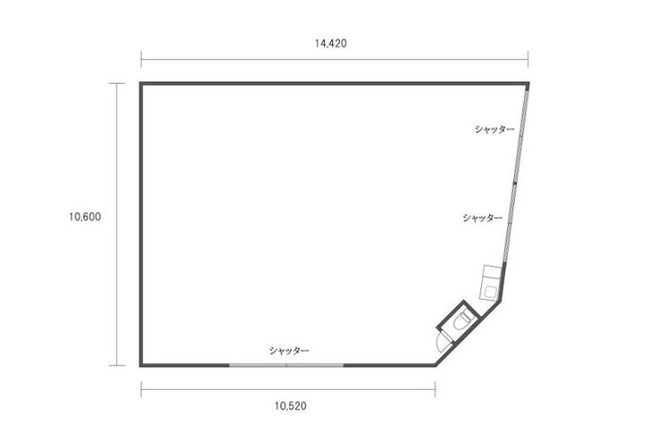
| 所在地 | 大阪府大阪市西成区岸里2丁目2-1 |
|---|---|
| 交通・アクセス | 大阪メトロ四ツ橋線『岸里』駅徒歩2分 大阪メトロ堺筋線・南海本線/高野線『天下茶屋』駅徒歩6分 南海高野線『岸里玉出』駅徒歩7分 府道41号線(松虫通)に面す 国道26号線至近 |
| 賃料 | 385,000円(税込)/坪単価:9,005円 |
| 敷金 | 無し |
| 礼金 | 2ヶ月 |
| 建物面積 | 141.35㎡(42.75坪) |
| 建物構造 | 軽量鉄骨造平家建 |
| 建築年月日 | 昭和38年1月 |
| 用途地域 | 第二種住居地域 |
| 前面道路幅員 | 北側:25.0m 東側:8.0m |
| 使用開始時期 | 即時 |
| 設備 | トイレ |
| 備考 | *現況空家 *大通り沿い角地 *平屋 *徒歩1分にファミリーマート *徒歩3分にローソン *区民センターの向い |
大阪府大阪市西成区岸里の延床面積約42坪の貸倉庫です!
▪ 大阪メトロ四ツ橋線 岸里駅徒歩2分
▪ 堺筋線・南海線 天下茶屋駅徒歩6分
▪ 南海本線 岸里玉出駅徒歩7分
▪ 松虫通沿い沿い角地
▪ 国道26号線至近
▪ 使い易い平屋
岸里駅徒歩2分、複数路線駅徒歩圏の好立地!
大通り沿い角地!
使い易い平屋倉庫!
詳細はお気軽にお問い合わせ下さい!
その他、大阪市内南部の物件情報はこちら
➾【大阪市内南部】
貸し倉庫・貸し倉庫マートでは、倉庫・工場・事業用地の物件情報を募集しております。
掲載希望のオーナー様はお気軽にお問合せ下さい。
現地取材後動画作成も行い、【YouTube、Instagram、Twitter】での情報発信も同時にさせていただいております。
もちろん掲載費用は無料です。