『物件掲載希望』のオーナー様へ!
貸し倉庫・貸し倉庫マートでは、倉庫・工場・事業用地の物件情報を募集しております。
掲載希望のオーナー様はお気軽にお問合せ下さい。
現地取材後動画作成も行い、【YouTube、Instagram、Twitter】での情報発信も同時にさせていただいております。
もちろん掲載費用は無料です。
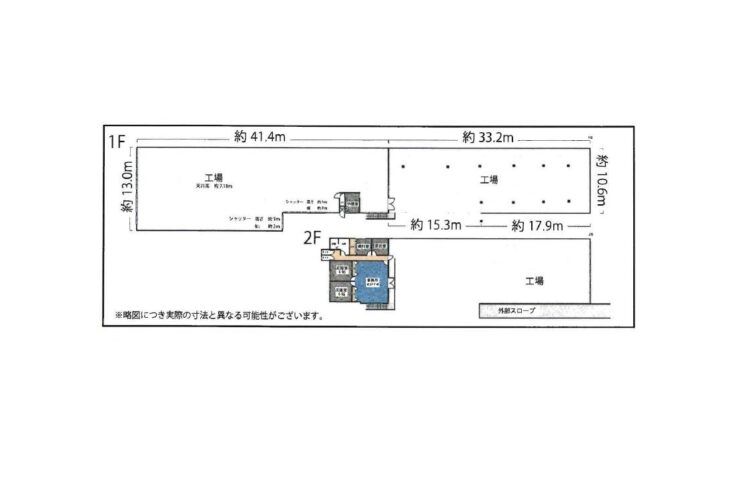
| 所在地 | 京都府宇治市槇島町二十四1番 |
|---|---|
| 交通・アクセス | 府道241号 向島宇治線 約70m 国道24号線 約450m 京滋バイパス 宇治西IC 約1.0㎞ |
| 賃料 | 1,050,000円(税込)/坪単価:7,317円 |
| 保証金 | 1ヶ月 |
| 敷金 | 3ヶ月 |
| 礼金 | 1ヶ月 |
| 土地面積 | 1,109.71㎡(約335.68坪)*公簿 |
| 建物面積 | 延床面積:474.39㎡(約143.50坪) |
| 建物構造 | 鉄骨造スレート葺2階建 |
| 建築年月日 | 昭和48年11月 |
| 用途地域 | 工業地域 |
| 前面道路幅員 | 南側:5.0m(72.2m接面) 西側:3.0m(11.5m接面) |
| 使用開始時期 | 即時(現況空) |
| 設備 | *公営水道、電気、都市ガス、公共下水 |
| 備考 | *駐車スペース有 *契約期間 2年 *更新料 新賃料1ヶ月 *家賃保証 要加入 *火災保証 要加入 *6ヶ月以内の早期解約:賃料の6ヶ月分 *増築未登記部分有:1階 約423.92㎡ 2階 約293.6㎡ *現状有姿 |
貸し倉庫・貸し倉庫マートでは、倉庫・工場・事業用地の物件情報を募集しております。
掲載希望のオーナー様はお気軽にお問合せ下さい。
現地取材後動画作成も行い、【YouTube、Instagram、Twitter】での情報発信も同時にさせていただいております。
もちろん掲載費用は無料です。