『物件掲載希望』のオーナー様へ!
貸し倉庫・貸し倉庫マートでは、倉庫・工場・事業用地の物件情報を募集しております。
掲載希望のオーナー様はお気軽にお問合せ下さい。
現地取材後動画作成も行い、【YouTube、Instagram、Twitter】での情報発信も同時にさせていただいております。
もちろん掲載費用は無料です。
| 所在地 | 大阪府八尾市上之島町北6丁目17 |
|---|---|
| 交通・アクセス | 近鉄信貴線『河内山本』駅徒歩24分 国道170号線(大阪外環状線)約600m 近畿自動車道 東大阪南IC 約4.5㎞ |
| 賃料 | 5,000,000円(税別)/坪単価:3,668円 |
| 敷金 | 4ヶ月 |
| 礼金 | 2ヶ月 |
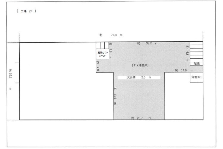
| 建物面積 | ① 工場1F:1,767.04㎡ 2F:759.51㎡ 3F:1,767.04㎡ ②事務所1F:106.10㎡ 2F:106.10㎡ 延床面積:4,505.79㎡(1,363.00坪) *公簿 |
| 建物構造 | 鉄骨造スレート葺3階建 |
| 建築年月日 | 昭和4年7月 |
| 用途地域 | 工業地域 |
| 前面道路幅員 | 約6.0m |
| 使用開始時期 | 2026年8月以降(要相談) |
| 備考 | *現況使用中で引渡しは2026年8月以降相談 *①工場倉庫棟 ②事務所棟 *2.8tクレーン×1基、昇降機×3基 エアコン、キュービクル有り 全て残置物扱い *駐車場有り *準防火地域 *家賃保証会社加入要 *借家人賠償付き火災保険加入要 |
大阪府八尾市上之島町北の延床面積約1,363坪の貸工場/倉庫です!
▪ 延床1,300坪越えの希少大型物件
▪ 3階建工場約1,300坪+2階建事務所約64坪
▪ 大阪外環状線約600m
▪ クレーン1基、リフト3基有り(残置物)
▪ 駐車場有り
▪ 工業地域
延床1,300坪越えの大型貸工場出ました!
2階建事務所棟付き!
クレーン、リフト3基、駐車場有り!
工業地域。
詳細はお気軽にお問い合わせ下さい!
その他、八尾市の物件情報はこちら
➾【八尾市】
貸し倉庫・貸し倉庫マートでは、倉庫・工場・事業用地の物件情報を募集しております。
掲載希望のオーナー様はお気軽にお問合せ下さい。
現地取材後動画作成も行い、【YouTube、Instagram、Twitter】での情報発信も同時にさせていただいております。
もちろん掲載費用は無料です。